鸿威的森林-355平米-新古典风格
户型:四居及以上
风格:中式古典
面积:355㎡
装修方式:全包
装修工期:350天
位置:鸿威de森林
造价:78万元
方案说明
本案设计运用新中式跟新古典混搭风格。达到清新古雅,内蕴恬淡。新中式风格建筑总是能给人现象中所期待的古雅气质,让人无论是置身其中还是远观欣赏都能够很好的感受到中式建筑中那氤氲着古雅情愫的氛围。而大巧不工的布局似乎也在极力诠释,装修给人们带来的中式典雅环境惬意的起居生活。在主客厅沙发背景一抹淡雅的中国红下面,客厅背景的山纹石材无不淡雅。柔和的色调给绝大多数人以温文尔雅的气氛,通过简洁而明快的中式家具造型,和亚光家具饰面给人以中式环境下的凝神静心的体验。
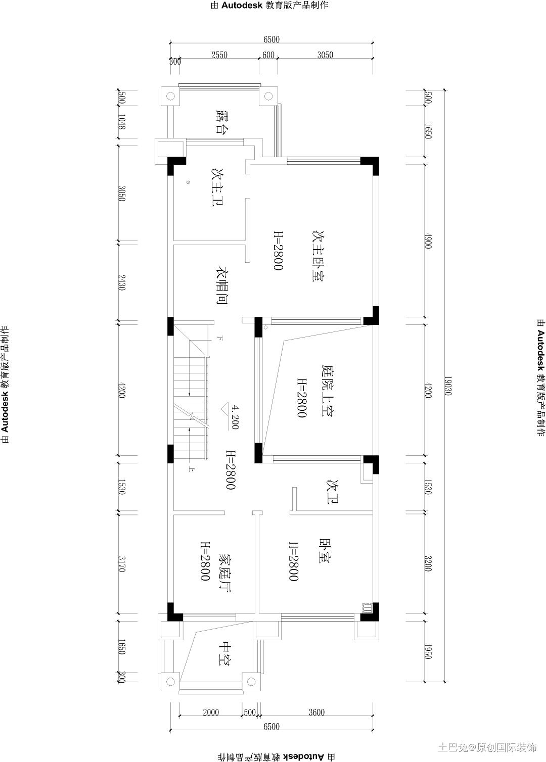
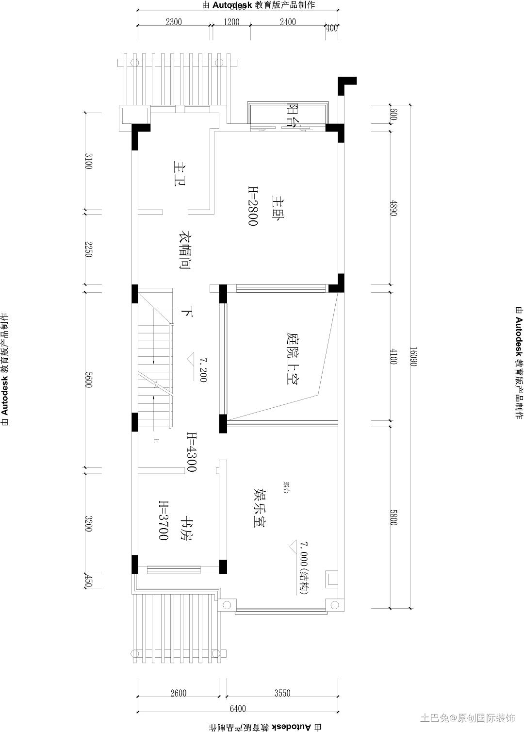
户型图
客厅
地面采用大理石瓷砖上面分布细腻的纹理与白色墙面和天花搭配,低调优雅,布局鲜明且气质独特,电视背景墙采用岩板独特的纹理,流畅的花纹凸显层次感。
餐厅
餐桌六人桌,满足大人数就餐,侧边运用柔和曲线设计,时尚大气的同时,确保了小孩嬉笑打闹的安全性。简约圆形餐厅吊灯环环相扣,结合旁边壁画的搭配,更是显得时尚大方,现代简约。
卧室
超大双人床让房主睡得更舒心,旁边化妆台让女主人每天更方便,运用暖灰色系,与其他空间拉近距离的同时加入了更丰富的色彩,丰富内心世界。
书房
书房采用无主灯设计,满墙的书柜,配上落地窗,窗帘拉开,温暖阳光照进卧室内,温馨,温暖,上火气息加满。
发布于2023年03月14日
@声明:上述内容由装企自行上传
来源:原创国际装饰
<<上一篇
家装90平新中式风格






