外面是世界,归来是家
户型:三居
风格:北欧极简
面积:109㎡
装修方式:半包
装修工期:65天
位置:万州万汇城
造价:15万元
方案说明
这是一套北欧风格的装修案例,高颜值拼色墙提升空间格调,再缀以软装配饰丰富空间细节,区别常规。希望这套装修案例能给大家带来一些灵感。
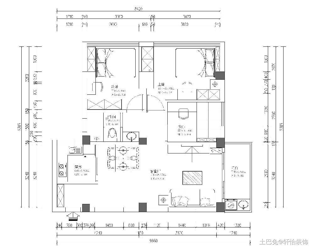
户型图
客厅
餐厅
厨房
卧室
卫生间
书房
发布于2021年01月26日
@声明:上述内容由装企自行上传
来源:轩怡装饰
下一篇>>
80㎡北欧风三居室,温情满满真佩服














