简约时尚而充满内涵的北欧极简风
户型:二居
风格:北欧极简
面积:90㎡
装修方式:全包
装修工期:60天
位置:旧宫东里
造价:12万元
方案说明
房主买的二手房,给孩子做学区房,小两居,在经济压缩的情况下实现小而美的风格,使空间合理利用,时尚大气。
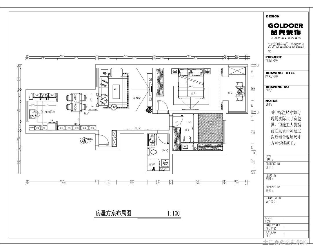
户型图
整体格局合理,功能分区独立,小空间而能大利用。
客厅
高贵,典雅而又明快的的会客区,墙色的反差及造型的简约合理搭配,凸显客户的高雅品质。
厨房
厨房整体的利用,干净舒适,采用了开放式厨房使厨房更加宽敞明快,空间合理利用。柜体的颜色和墙砖的反差彰显厨房的高贵大气品质。
卧室
简约时尚的床头背景及床体的色调配置,彰显出男女主人的沉稳及品味。是休息放松的美妙场所。
发布于2022年04月06日
@声明:上述内容由装企自行上传
来源:金典装饰
<<上一篇
北欧住宅
下一篇>>
完美北欧空间 90平米小三居的温馨生活










