37平单室套北欧风格
户型:一居
风格:北欧极简
面积:37㎡
装修方式:全包
装修工期:71天
位置:瑞金路二号四号小区
造价:5万元
方案说明
这是一套位于市中心秦淮区的老房改造案例,业主是一位刚毕业的美女,一个人住。要求简单舒适,不需要过于复杂冗余的装饰。
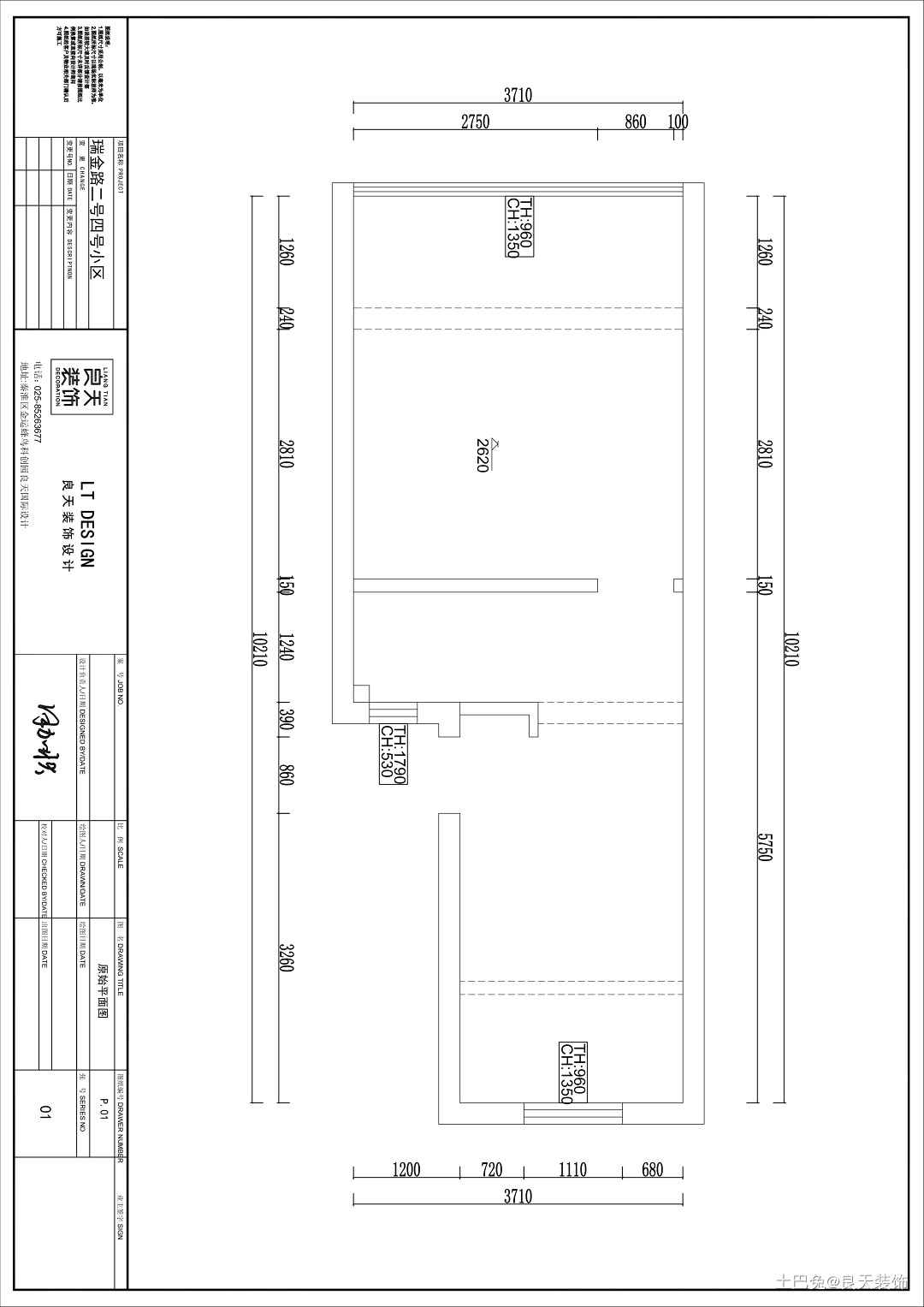
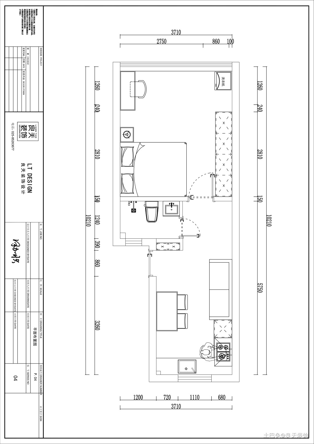
户型图
户型南北通透
客厅
奶咖色背景墙舒适温馨
餐厅
餐桌靠墙摆放,增加过道空间
开放式厨房
开放式厨房
卧室
背景墙分色,增加层次感
卫生间
一体色卫生间,纯净空灵
发布于2022年06月29日
@声明:上述内容由装企自行上传
来源:良天装饰
<<上一篇
90㎡ 北欧风格 东坝家园
下一篇>>
深色系经典红,适合年轻小两口










