葛女士的新家
户型:二居
风格:北欧极简
面积:47㎡
装修方式:半包
装修工期:45天
位置:万泉街
造价:7万元
方案说明
业主一家两口人,侄女上学有时候会过来居住,业主喜欢清新的北欧风格,考虑业主平时喜欢做西餐,原户型的厨房面积狭窄,设计上把厨房扩大,使他做饭时候操作起来更方便,后期设计增加空间储物功能,业主准备要孩子,在主卧准备了婴儿床,这样照顾起来更方便。
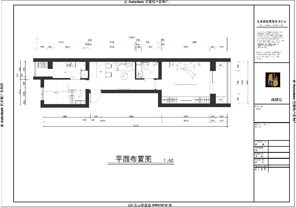
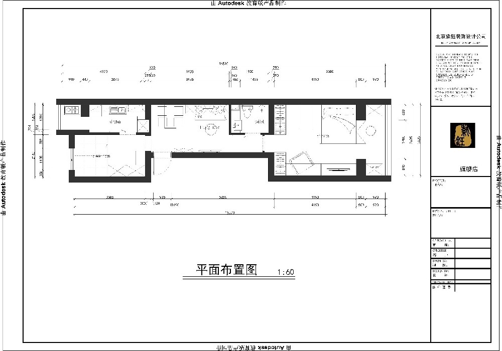
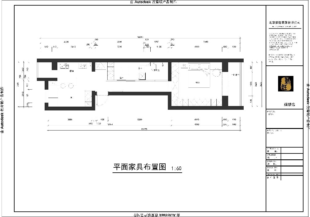
户型图
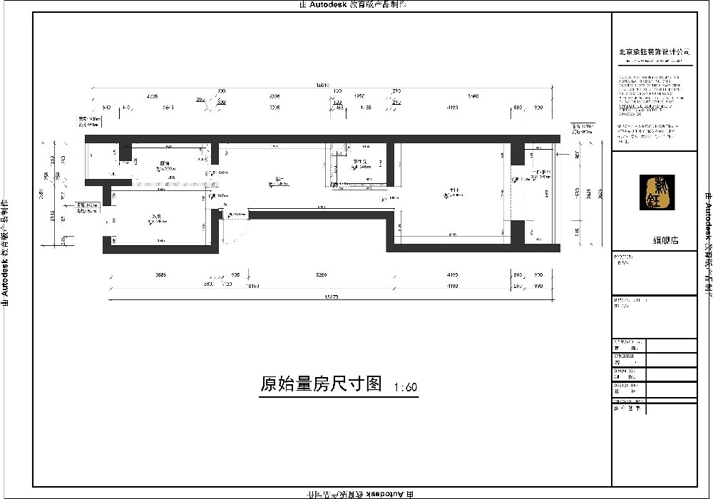
原始户型图
改变了门洞位置,空间利用率更高
厨房墙体拆除做成开放式厨房
业主家里有宠物,在阳台放置宠物笼,可以让它们晒太阳
卧室
主体灰色的空间,增加粉色的软装,是卧室具有活泼性
发布于2018年05月12日
@声明:上述内容由装企自行上传
来源:紫钰装饰
<<上一篇
忍不住晒晒北欧风,没想到客厅还能这么装!
下一篇>>
北欧设计 | 浅色系风情








