高级灰+雾霾蓝,打破冬日沉闷,温柔高级!
户型:二居
风格:北欧极简
面积:120㎡
装修方式:全包
装修工期:120天
位置:尚品
造价:40万元
方案说明
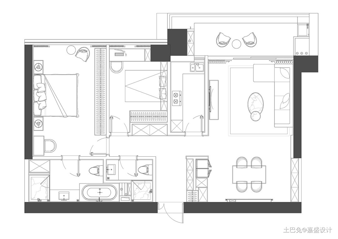
原户型很方正,结构也合理,不需要大拆大改去体现设计的价值。功能需求方面,业主希望卫生间大一些,要放浴缸;对家里整体感觉希望是干净整洁、好打理的,不需要太复杂的设计,但也不希望太极简而没有精致感。
户型图
客厅
透过大面积落地窗迎接自然光入住,光、影、材的相互映照,视觉上越发和谐,营造理性内敛的奢华感。以高级灰为主基调,搭配纹理清晰的木饰面餐边柜,整体干净素雅、通透高级
餐厅
客餐厅一体的布局让公共区域更显开阔,通透的视觉效果提升了空间舒适度。冰箱外置的设计十分便利,简直是懒人福音!看电视时只需要挪动几步就能取出快乐水,享受吨吨吨的快乐
厨房
厨房素雅大气,浅灰色地砖搭配浅色纹理墙砖和白色橱柜,纯净的配色勾勒出简约大气的烹饪空间。充分利用墙面空间,加设横排吊柜+竖排电器柜,蒸箱、烤箱、洗碗机都可嵌入其中,柜门一关便是整洁一体化的视觉感。
卧室
主卧延续雾霾蓝的主色调,以整面硬包+不锈钢作为床头背景墙,一派沉稳静谧之感。
发布于2021年12月05日
@声明:上述内容由装企自行上传
来源:嘉盛设计
<<上一篇
北欧设计 | 浅色系风情
下一篇>>
混搭风格








