82平日式原木风,谁能拒绝这么温柔的家
户型:二居
风格:日式
面积:82㎡
装修方式:全包
装修工期:90天
位置:荔湖花苑
造价:10万元
方案说明
屋主喜欢北欧风浪漫,也喜欢日式的柔和,又不想舍弃简约风的清爽,设计师结合屋主一家的需求将三种风格合而为一。因为成年人不做选择题,三种都要!
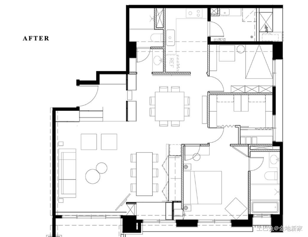
户型图
平面布局方案
客厅
「去电视墙化」是公领域的关键主题,可被解构为一种留白,更是上个时代的屏幕,走到行动智能装置时代的微妙切换点,我们必须思考生活是被动型态,或主动积极展现,运用最纯粹「去电视墙化」来展现客厅,不是风格堆叠。
因为家中常有聚会,除了客厅实木桌之外,此处择一带有旋转功能的陶板圆桌,由于常饮红白酒,陶板材质能一拭即净,很适合有饮酒的餐饮习惯的家庭,
无论平日简单用餐、小酌片刻、众人飨食,都能极好地搭配,另侧砌一落开放式酒柜,
餐厅
餐厅与客厅呈开放之姿相连,将空间尺度拉升至极致,结合功能需求与设计原理,设计团队打破单调的实体格局,赋予空间更细腻的交互与动静关系及哲学思考。
呼应玄关的圆拱造型,灯光洒落的微醺感油然而生。
透过餐厅看客厅效果,客厅无茶几的设计也为小孩玩耍提供更多富余之地。
卧室
延续本案设计精髓,每一处区域都契合屋主的日常使用,主卧是卧眠休憩之用,毫无过多的陈设,床头采用局部特调粉色作为背景,简约而不简单
选用较为深色的木纹地板,并以藕色漆面与同色窗帘相映,光映透入晨起朝阳,美好的每一日都于此展开。
卧室的暖白色基调清雅安逸,别出心裁的床头设计,自然且朴实,舒适生活一触即发。
卫生间
卫生间对于居室来说,“使用频率极高”,为了完善其功能的舒适性,故采用干湿分离的方法;卫浴配件都采用极有质感的黑色,整体空间简洁,有秩序。
同色系的大理石与长条小瓷砖融合,让卫生间干净通透中不乏简洁优雅;镜柜后方可以储物,放一些洗漱用品。
发布于2022年05月09日
@声明:上述内容由装企自行上传
来源:金地新家















