230㎡轻奢简约复式楼,三世同堂的理想家
户型:四居及以上
风格:现代简约
面积:230㎡
装修方式:半包
装修工期:330天
位置:香樟绿洲
造价:34万元
方案说明
本案例是上下两层的复式结构,设计师以现代轻奢风的设计理念,选用简练舒适的装修材质,合理发挥每一寸空间的独特性,在注重生活品质的基础上呈现出大气简约且雅奢精致的氛围,构筑了三世同堂的理想家。
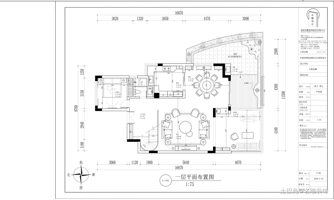
户型图
由于原户型没有过多的缺陷,硬装方面没有多做改动,设计师根据业主的居住需求优化空间布置。
一楼主要是活动区,包含厨房餐厅客厅等空间,并将长辈房设计在一楼,方便日常行动,二楼则是三个卧室+书房,紧密相连。
玄关
玄关楼梯处,入户门右侧打造成与墙壁一体的玄关柜,浅灰色大理石楼梯搭配透明玻璃扶手,加以金属边框点缀,精致有格调。
客厅
客厅,两层挑高中空设计,玄关直入客厅,使用金属栅栏条区分空间,隔而不断。沙发、茶几、电视机布局呈围合造型,光泽温润的大理石墙地面搭配同色系的皮质沙发,看起来浑然一体。
一整面的大理石电视机背景墙搭配木饰面,木质与石材之间和谐搭配,在背景墙上嵌入灯带,空间照明灵活生动,也增添了高级感。
客厅一旁区域设计成休闲区域,两面临窗,可直接进入一楼的花园。休闲区没有多做装饰,仅仅摆放一张沙发、一张牌桌也能满足惬意需求。
餐厅
餐厅厨房相连,动线顺畅便捷。高颜值的浅灰色可旋转极薄岩板餐桌,灰色与橙色的餐椅相间搭配,统一搭配细桌腿,展现时尚轻奢的质感。
餐厅是每个家庭重要的活动场所,布置好餐厅,既能创造一个舒适的就餐环境,还会使得居所增色不少!
开放式厨房
厨房,以静谧灰作为空间的整体基调, “L”型的橱柜搭配同色系的岩板台面,嵌入式的整体收纳,线条感与空间结构布局统一秩序。
厨房采用适当的上墙收纳设计,日常使用的厨具以及调味品收纳在显眼处。厨房使用了可拆卸性的集成吊顶,能够有效隔离油烟及水汽,后期维修也方便。
卧室
主卧铺设木地板,床头背景墙使用金属框线点缀,两扇圆弧形的窗户设计增强空间质感,简洁又独特。
床头一旁定制与背景墙同色系的到顶衣柜,收纳容量大且不占用过多的卧室空间。
卫生间
卫生间选择了比较耐脏的浅灰色大理石装饰墙地面,,淋浴区使用玻璃门分隔实用,干湿分离布局。浴缸嵌入式安装在在座台上,既减少了浴缸外部的卫生死角,使用起来也更加舒适。
儿童房
女儿房空间布局温馨舒适,乳白色的床体搭配水粉色背景墙,配色简单温和,无主灯设计,散发出的灯光也更加柔和舒适。
圆拱形的窗户外是葱郁的绿植,阳光随着斑驳的树影跃入双人沙发上,独处小空间自由肆意。
小书桌面积不大,墙上的的极简书架收纳容量充足,展示二次元人的心爱手办。
男孩房,冷色调的蓝色背景墙在木质地板的融合之下变得柔和起来,空间不需要复杂的布置,一床一桌一靠椅,已经满足休憩需求。
书房
书房,从主卧窗户旁直入,由于复式楼挑高中空设计,从这里可以直看一楼的全景状态。
走廊
主卧和男孩房之间的过道设计有一个小小洗手台,兼具实用性与装饰性。
发布于2022年01月15日
@声明:上述内容由装企自行上传
来源:名雕装饰






















