实景案例-星河盛世135㎡绽放的现代之花
户型:三居
风格:现代简约
面积:135㎡
装修方式:半包
装修工期:85天
位置:星河盛世
造价:33万元
方案说明
该设计案例位于深圳龙华区的星河盛世小区,135㎡的居住空间对于张先生和吴小姐来说是很充足的,在居住空间上对主卧的要求比较高,衣物鞋帽比较多,想要有独立的衣帽间,这就对空间的设计有一定的考验
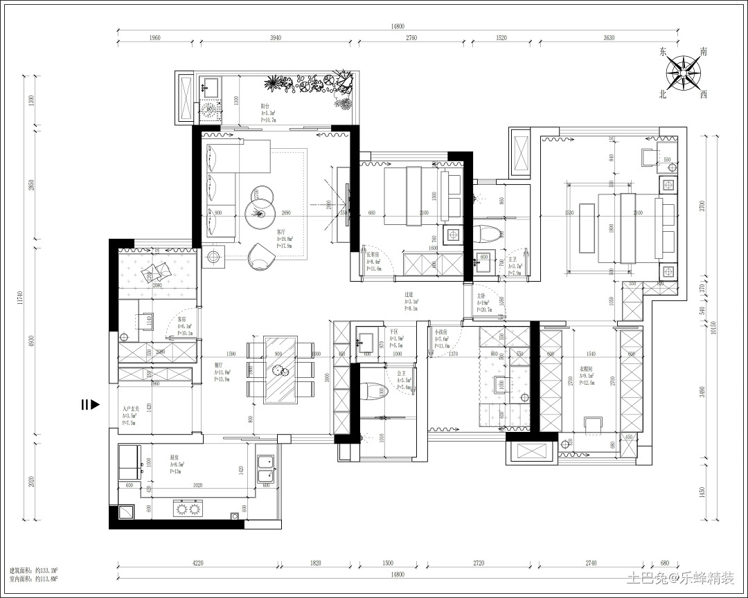
户型图
因为是二次装修,所以我们在原始结构图上也能看到一些原始构件的存在,入户左侧的空间有点尴尬,位于客餐厅包围的小空间里;过道也比较狭长,需要尽量弱化
在设计之后我们把空间尽量都规整化,入户区域做整排的到顶鞋柜,原先鞋柜后尴尬的小区域做成了客房,这样客餐厅得到了方正的空间,主卧室整合了旁边的卧室,原先空间紧凑的卧室作为大型的衣帽间使用
玄关
玄关是进门的第一个区域,在一侧我们布置了玄关鞋帽区,通顶的鞋柜保证了日常储鞋量的充足,分不同区域来实现换鞋、储鞋、储物、吊挂的不同需求
一个温馨的玄关是进入家里切换成居家模式的空间,不同类型灯具的使用使其产生出不一样的效果
客厅
望向客餐厅,墙面造型、家具、顶面都简约大方,没有缀余的装饰,在客厅后方的卧室门用到了隐形门,和整体的墙面饰面板融为一体,毫无违和感
拉长的出风口被拉长,承接了整个客餐厅视觉延伸的作用
电视背景墙采用到岩板+木格栅的组合,岩板通过其高颜值且防刮耐磨的特性得到了越来越多业主的青睐
餐厅
餐厅的用餐环境很舒适,在一侧定制的餐边柜不仅能用来储物还有展示的功能,通过黑色的玻璃柜门的透光性,可以很好展示柜体内的物品
作为客餐厅一体的优秀户型,保持空间的通透感显得尤为重要,在长达近8米的客餐厅长度中,没有一丝空间的浪费,全部都尽收眼底
厨房
厨房凭借着其宽敞的空间,会让日常的家务变得更加轻松,U型的橱柜增加了可操作面积,也让各种厨房电器有自己的放置空间
卧室
主卧处理背景墙用到饰面板的不同材质进行拼接,靠窗台的木饰面板延伸到梁体下方,从而减少飘窗横梁带来的视觉压迫感
通过主卧室和次卧室的打通,让整体的储物空间倍增,在视觉方面,主卧有更多的深度,次卧也得到了更合理的利用
有衣帽间和卧室内部的三组衣柜做收纳加持,主卧的收纳压力得到了充分解放
次卧室的布置以暗色为主,因为主要是给老人休息的长辈房,所以空间色彩比较暗,窗帘也更加强调遮光性
同样收纳也要跟上,通顶的衣柜带来更多的收纳空间
多功能房的布置结合了各种功能,日常可作为午休室,榻榻米地台整合衣柜、书桌提供了强大的收纳空间,在有客人需要留宿时还可作为客人的临时客房使用,当然如果屋主需要一个安静舒适的临时办公或学习的环境,这里也是绝佳的位置,功能完备又不受打扰
卫生间
公区卫生间将淋浴区与其他功能区域进行划分,保持了卫浴场地的干燥卫生,方便日常打扫,干湿分离也是家庭常用的设计手法
和公区卫生间不同的是主卧卫生间没有将浴室柜外置,而是作为一个整体设计,这样有效避免了卫生间水汽的外溢。
儿童房
儿童房是小孩发散乐趣的天地,从小就培养小孩的各种兴趣
儿童房更加注重收纳,除了注重兴趣之外,从孩子小的时候就从生活的各个方面培养孩子的收纳习惯
衣帽间
衣帽间并不只是单纯的视觉眼神,中间有长虹玻璃推拉门的隔断,入墙式的推拉门充分利用了卧室的宽度,不占用门体的内空面积
发布于2022年01月12日
@声明:上述内容由装企自行上传
来源:乐蜂精装
























