现代极简之家,合理规划空间更舒适
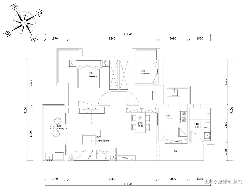
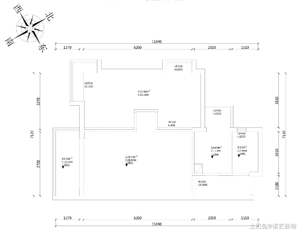
户型:二居
风格:现代简约
面积:76㎡
装修方式:全包
装修工期:60天
位置:富力桃园
造价:12万元
方案说明
业主对于设计效果的要求非常明晰,造型从简,全屋智能,满足收纳。针对业主的需求,做了三套不同风格、不同改造程度的方案。在为期不短的设计过程中,我们在思想上相互碰撞,在设计中相互妥协,最后的成果,也是彼此共同创造和享有的。
我们非常喜欢对自己需求了解的客户,因为生活,重在人而不是形,设计从来都是贴合生活来进行的,交流、沟通和谈话,都是为了进一步了解您的真实所需,不做形式化的设计。
客厅
餐厅
厨房
卧室
卫生间
发布于2020年04月26日
@声明:上述内容由装企自行上传
来源:诺艺装饰
<<上一篇
泗塘六村
下一篇>>
《瓦尔特》现代简约|4居大平层













