玉兰湾王先生的新家
户型:二居
风格:现代简约
面积:92㎡
装修方式:半包
位置:K2·玉兰湾
造价:3万元
方案说明
现代风格,现代的生活元素,简约不简单,不仅豪华大气,更加惬意和浪漫,给人舒适放松的空间感觉。
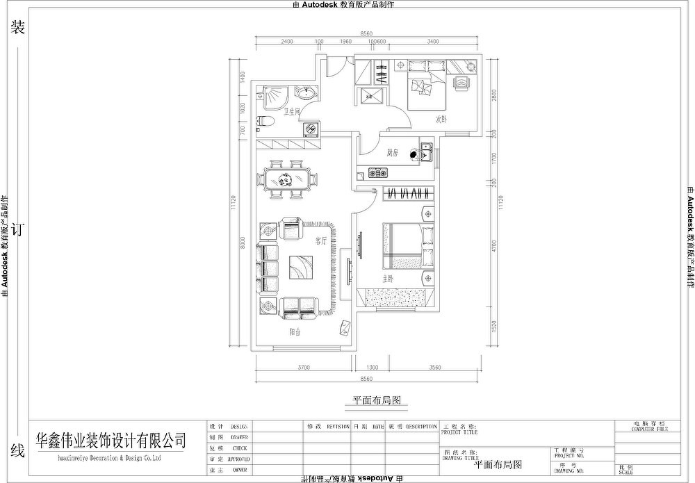
户型图
现代风格,现代的生活元素,不仅豪华大气,更加惬意和浪漫,给人舒适放松的空间感觉。
客厅
现代风格,现代的生活元素,不仅豪华大气,更加惬意和浪漫,给人舒适放松的空间感觉。
餐厅
现代风格,现代的生活元素,不仅豪华大气,更加惬意和浪漫,给人舒适放松的空间感觉。
其他
现代风格,现代的生活元素,不仅豪华大气,更加惬意和浪漫,给人舒适放松的空间感觉。
发布于2016年06月16日
@声明:上述内容由装企自行上传
来源:华鑫伟业装饰
<<上一篇
116平现代风,时尚又大气
下一篇>>
蔚来电动汽车北京旗舰店







