冠华苑杜先生的新家
户型:二居
风格:现代简约
面积:89㎡
装修方式:半包
装修工期:32767天
位置:龙冠冠华苑
造价:3万元
方案说明
以最简单的方式表达业主的生活理念,和生活习惯,以及业主的喜恶。
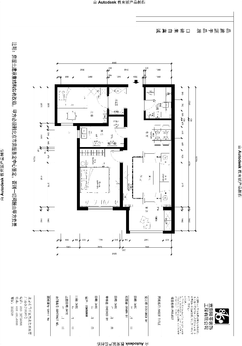
户型图
户型基本算整齐,可实际利用空间比较大
合理利用空间,利用起来每一个角落
客厅
家里客厅是一个主要亮点,有点混搭风
发布于2017年11月10日
@声明:上述内容由装企自行上传
来源:北京1860装饰
<<上一篇
200㎡现代简约风四居,第一道风景
下一篇>>
75㎡的精致小家,打造温馨二人世界






