天湾园88㎡现代极简风格装修案例
户型:二居
风格:现代简约
面积:88㎡
装修方式:全包
装修工期:90天
位置:梅江水岸
造价:12万元
方案说明
本案是一个88㎡的两口之家,业主希望家是温馨而且简洁的,设计师了解需求后,采用白色,米色浅黄色等颜色为主,全房治愈系奶油色调,家具的颜色和房间色调保持统一,视觉上显得整齐开阔,搭配同色系的软装打造自由温馨的惬意空间。
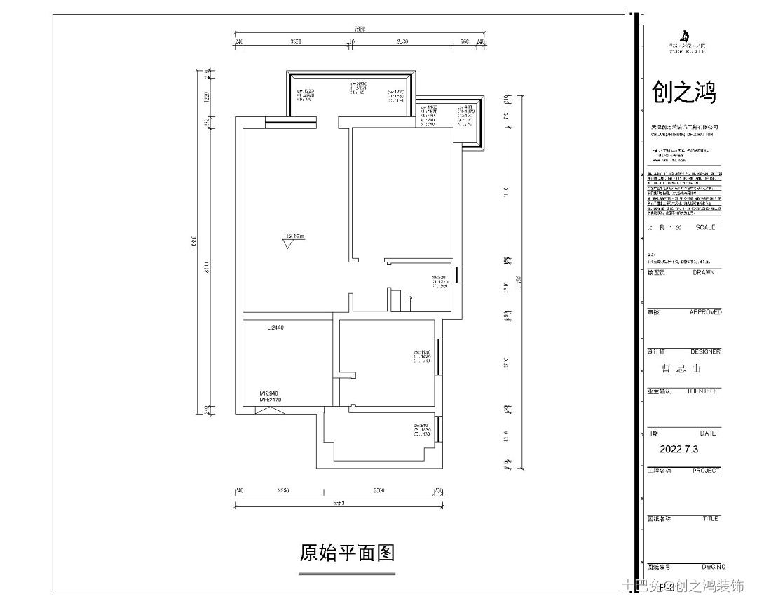
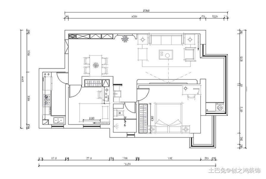
户型图
天湾园88㎡原始户型图
天湾园88㎡平面布局图
玄关
玄关做通鼎玄关柜,中间和底下镂空设计,方便收纳脱衣以及随手的小物件
客厅
客厅采用奶咖色为主调,温馨自然
餐厅
餐厅上方的横梁圆弧处理,增加空间的柔美曲线
封闭式厨房
厨房采用L型设计,嵌入式冰箱等家电,让生活更加舒适
卧室
卧室色调与客餐厅一致,奶咖色系将唯美进行到底
卫生间
卫生间做了干湿分离,干区至外,使用起来更加方便
走廊
走廊处做卫生间干区,网红水磨石墙砖增加空间的颜值
发布于2022年07月26日
@声明:上述内容由装企自行上传
来源:创之鸿装饰
<<上一篇
75㎡的精致小家,打造温馨二人世界
下一篇>>
120m²现代风,loft简约实用

















