富贵园 129平米平层 现代侘寂装修
户型:三居
风格:现代简约
面积:129㎡
装修方式:全包
装修工期:50天
位置:富贵园
造价:25万元
方案说明
侘寂风格起源于15世纪的日本哲学。当时社会的主流美学过度采用稀有材料装饰,过分强调奢华,于是讲究从不完美中找寻美的侘寂风格应运而生,并与主流美学相对立。真实性是侘寂风的核心。侘寂风追求认识生活中的真实性,保留真实性,享受简单的生活乐趣。 日本侘寂精神有一种让人心安的平静。如果我们接受了生活的短暂和不完美,那么我们就能够欣赏我们周围发现的风化物品以及原材料中意想不到的美。我们如果摆脱了完美主义的肤浅社会,去拥抱生活的真实性,我们就能温柔的驾驭这种平静的审美。
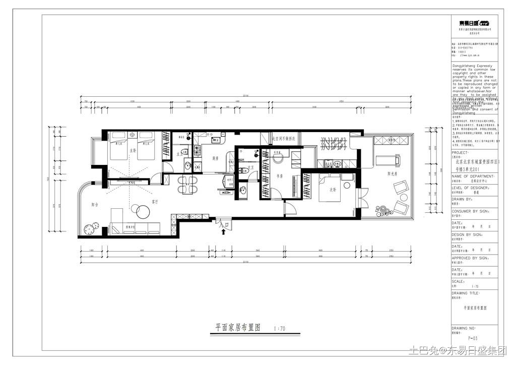
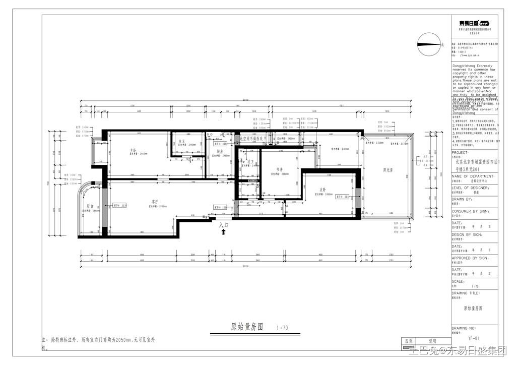
户型图
现代侘寂装修风格效果图,富贵园,北京东易日盛,北京东易日盛装饰一站式服务致力于精装改造,别墅装修,新房装修和二手房装修,专业的设计师将针对业主需求打造出舒适的理想空间
客厅
此空间为客厅,整个方案使用中央空调,电视背景墙与沙发背景墙上方做一字形石膏板吊顶,安装筒灯,配合定制电视柜底沿灯衬托出整个空间的感觉。
封闭式厨房
厨房采用封闭式厨房设计,采用铝扣板集成吊顶,洗、切、炒照明充足。整条动线为左侧为嵌入式烤箱,右侧为电器区,然后进行洗、切、炒。
卧室
主卧放置两张单人床方便老人休息,定制衣柜和床头柜使整个房间色调更搭配。床前设置电视柜,给业主提供娱乐。
整体色调以暖色调为主,吊顶设置灯带,使整个空间增加氛围感。左侧放置衣柜,增加了储物的空间。右侧放置梳妆台,让女主人上下班能更好的打扮自己。
卫生间
主卧放置两张单人床方便老人休息,定制衣柜和床头柜使整个房间色调更搭配。床前设置电视柜,给业主提供娱乐。
发布于2022年08月11日
@声明:上述内容由装企自行上传
来源:东易日盛集团
<<上一篇
现代
下一篇>>
中裕园现代两居室89㎡















