120㎡罗湖百仕达花园-现代简约
户型:三居
风格:现代简约
面积:120㎡
装修方式:半包
装修工期:99天
位置:百仕达花园
造价:12万元
方案说明
本案设计中,在颜色与质感的搭配下,展现出现代风格外观简洁流畅的特点,无论是注重内在精神的主观生活方式,还是通过空间活动所表现出的哲学性氛围,都表现了材料的纯粹性、空间的艺术性和审美的理想性。
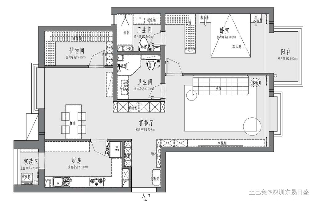
户型图
客厅
客厅是家居的核心区域。在现代家居格局中,客厅的面积是最大的,空间也是相对开放性的,地位也最高。
餐厅
餐厅是家居生活的心脏,不仅要美观,更重要的实用性,整体性。餐厅采用了长桌。宽大的桌面让主人有更多的地方摆盘,幸福的生活仪式感是必不可少的。
卧室
卧室最重要的就是要为居住者提供⼀个宁静、舒适、令⼈满意的睡眠环境。现代优雅的卧室空间,带来丰富的视觉享受。进入卧室空间中,渐渐安抚了一天的浮躁,给人一天好心情。让人可以静下神来,感受其中的静谧和光明。
卫生间
充分利用好各个空间
发布于2022年09月25日
@声明:上述内容由装企自行上传
来源:深圳东易日盛
<<上一篇
中裕园现代两居室89㎡
下一篇>>
金山谷









