80㎡荔湾区汾水小区小清新简约风
户型:二居
风格:现代简约
面积:80㎡
装修方式:全包
装修工期:60天
位置:汾水花园
造价:12万元
方案说明
余先生表示需要整体翻新一下,原客厅和主卧墙面发霉发黄,厨房卫生间部分地方渗水严重需要整体翻新,空间格局不变,业主喜欢简约风,带点小清新风格,下面就安排上吧!
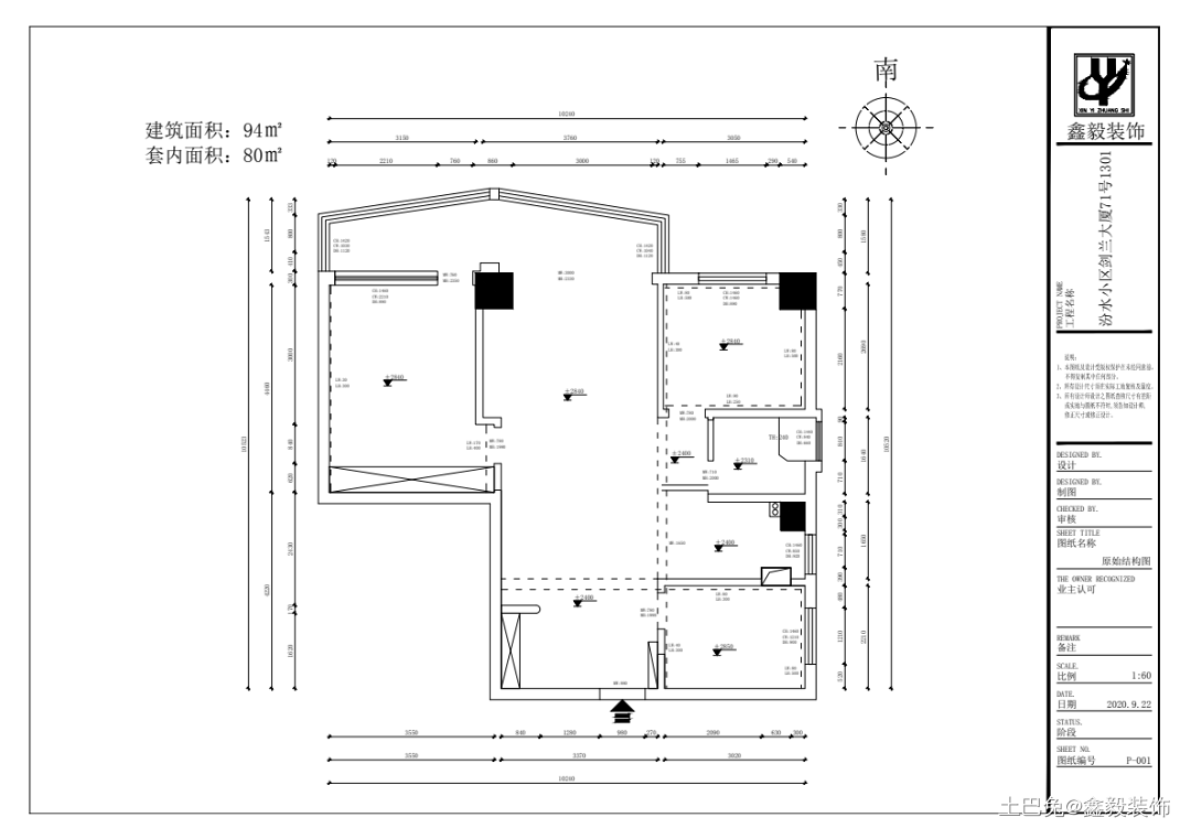
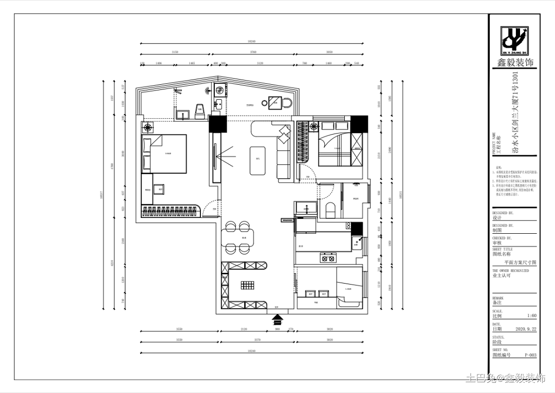
户型图
原始结构图,主框架不改动。
平面设计方案,应余先生要求,格局不变,整体翻新,合理的利用好各个空间。
客厅
客厅采用了小清新风,年轻又时尚,搭配帆布沙发和艺术壁画
半封闭式阳台,免除了推拉门,呈现更大的空间和便捷舒适
客厅的位置有个承重柱,结合余先生喜欢看书,用书柜包裹了承重柱,即实用又便利。
餐厅
余太太比较喜欢简约风餐厅,家里平时很少客人,但是喜欢啤酒看书等喜好,用简约式餐桌最为合适,
加上余先生喜好收藏红酒,品尝红酒,应余先生要求,特设计了储藏柜和酒柜屏风,品味生活百态。
封闭式厨房
厨房就简单多一些,两边做吊柜,橱柜,合理的利用每个空间,收纳烹饪用品。
卧室
主卧采用多色搭配,情调清新,在加了点个性化造型装饰。
两米一的衣柜做到顶,足够容纳日常衣物了。旁边在加了个简约式梳妆台。
卫生间
卫生间空间不大,所以采用干湿分区,用玻璃隔断分离,配备马桶和洗手台。
儿童房
小孩房采用了一米二的床,和简约式书桌,整体搭配小清新风!
发布于2021年05月29日
@声明:上述内容由装企自行上传
来源:鑫毅装饰
<<上一篇
清新北欧
下一篇>>
89㎡新家,还不要电视墙满满家的归属感















