现代简约,简洁实用的布置,生活美好舒适
户型:二居
风格:现代简约
面积:65㎡
装修方式:全包
装修工期:60天
位置:绿地御桥苑
造价:16万元
方案说明
本案空间是顶楼加上一个阁楼,由于阁楼的空间不是很大,所以基本考虑后期用来储物或者临时休息,基本的功能处理在楼下,客户拾一对年轻的夫妻加小朋友,小朋友需要父母来带,所以我们把靠南面的主卧给到小朋友和奶奶,对于空间的使用和风格比较能够接受大胆设计,在风格方面,希望家里能够尽可能的简约、时尚一些,在功能性方面,业主希望主卧可以更多储物,次卧考虑休息、储物
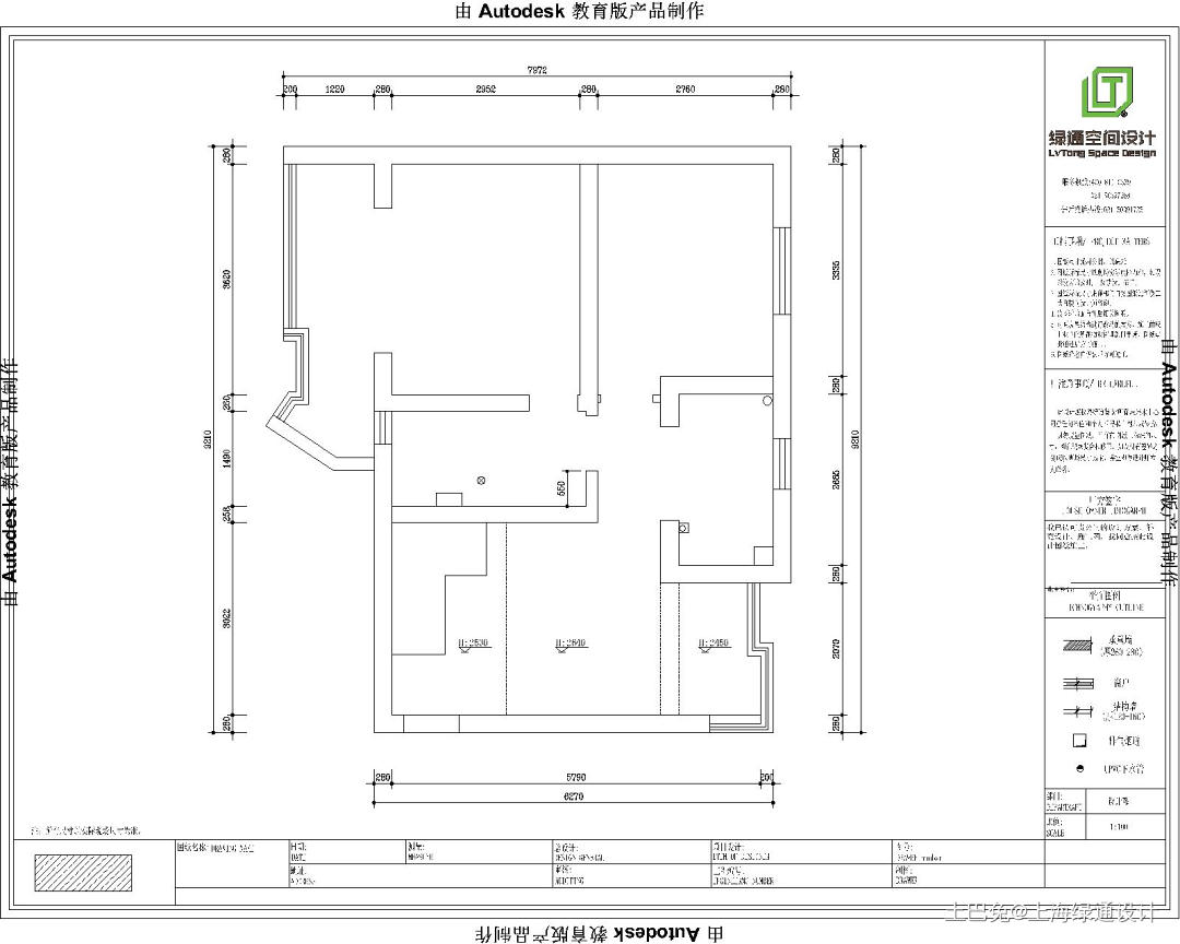
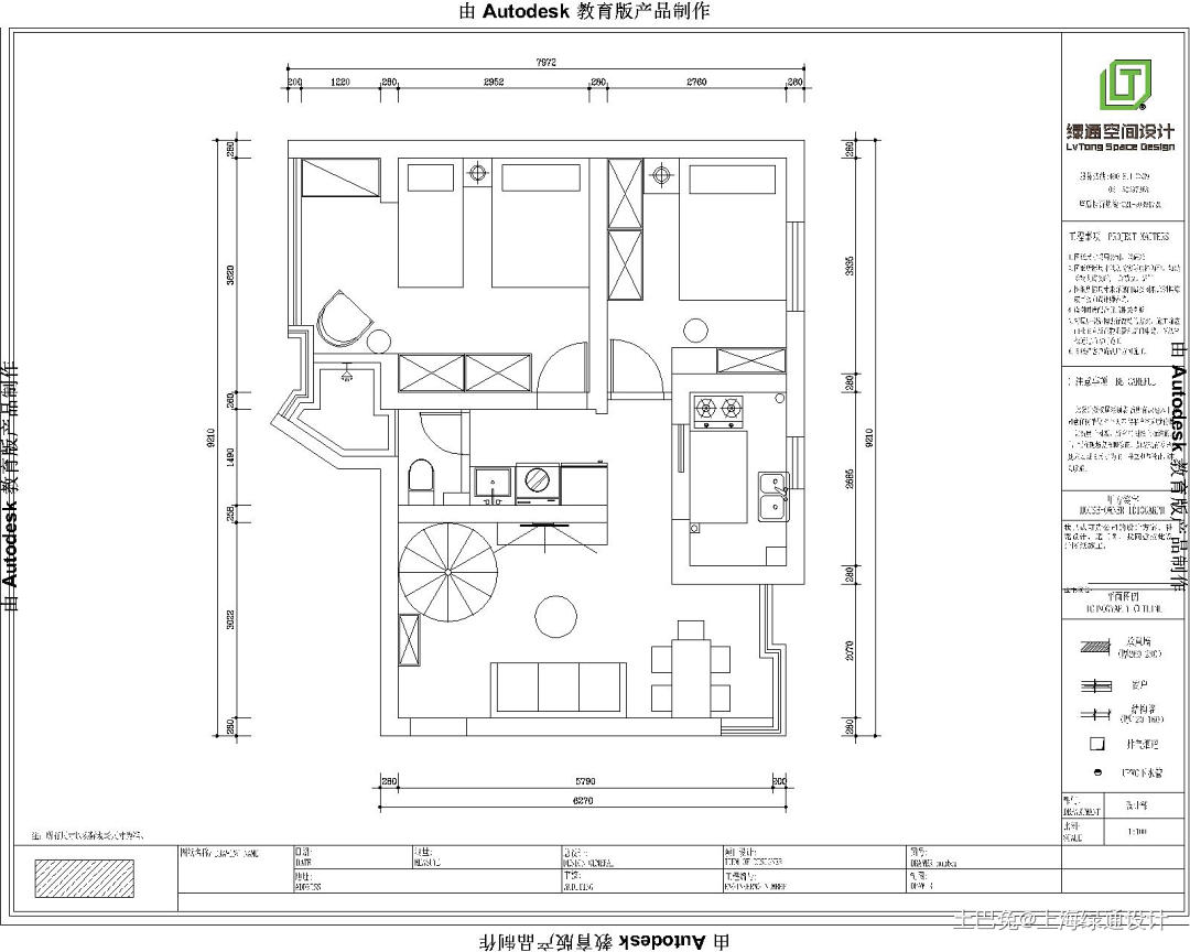
户型图
原始平面图
我们考虑将每个空间的功能、储物尽量做足,且每个空间足够大,由于房屋原有的格局相对空间通透,采光也很好,在格局方面没有进行太多的变动,整体设计为现代简约风格,在材质的选择上以环保为主,全屋使用涂料来丰富整体空间考虑用浅灰色加木色凸显腔调,次卧房间考虑用了灰色涂料做床头背景,这样能与整体的材质很好的呼应起来,使房屋整体的配色更加温馨,又不失质感。
玄关
进门的玄关位置做了进门换鞋区,保证功能性的同时又增加整体的层次感,使这一部分作为一个独立的空间存在,让客餐厅空间完整,视线开阔,使用舒适;
客厅
使其不至于过于单调,材质和整体的风格统一,增加了电视背景墙的美观度又不喧宾夺主,视线的焦点仍然是在电视上;
餐厅
客餐厅空间整体较大,在空间上原本就有很清晰的划分,电视背景墙用整体定制电视组合柜过长的电视背景墙装饰起来,
封闭式厨房
在整体材质的选择上,使用了哑光橡木的材质和乳胶漆的搭配,厨卫的墙地砖也配合使用了哑光砖,在视觉上起到空间延伸的效果,整体房屋简洁大气,质感凸显。
卧室
主卧放了1.2米加1.5米的床,对面做储物收纳,干净整洁,空间舒适;次卧考虑1.5米的床加梳妆台,在色彩的搭配上采取了米白色的床头背景墙体,整体空间干净舒适的同时,制作了整体的梳妆台加储物收纳空间
卫生间
卫生间门口的部位做了干湿分离的处理,地面辅以地砖铺贴,与整体的地砖相连接,将干区与入户走廊很好的衔接起来,也使整个地面更加灵活美观,材质的统一让空间更整体大气;
全封闭阳台
我们考虑将每个空间的功能、储物尽量做足,且每个空间足够大,由于房屋原有的格局相对空间通透,采光也很好,在格局方面没有进行太多的变动,整体设计为现代简约风格。
发布于2023年06月04日
@声明:上述内容由装企自行上传
来源:上海绿通设计





















