宁盛里赵女士的新家
户型:四居及以上
风格:现代简约
面积:117㎡
装修方式:全包
位置:宁盛里
造价:8万元
方案说明
简洁的表现形式来满足人们对空间环境那种感性的、本能的和理性的需求,这是当今国际社会流行的设计风格
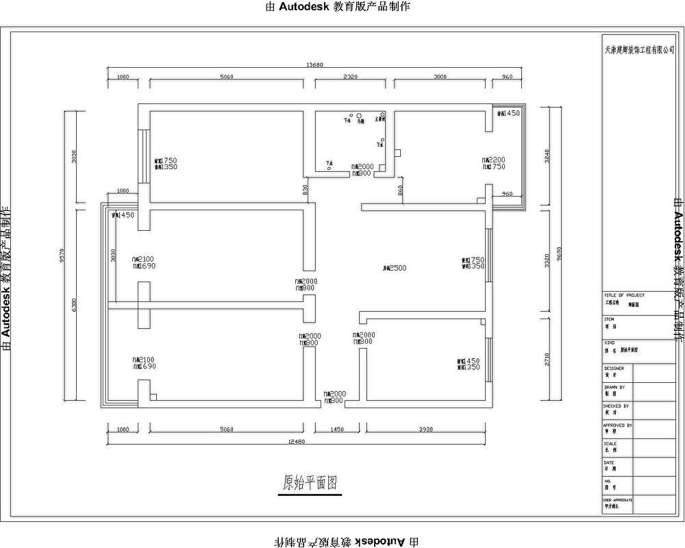
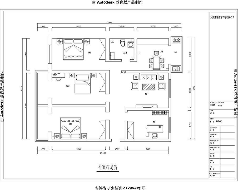
户型图
简洁的表现形式来满足人们对空间环境那种感性的、本能的和理性的需求,这是当今国际社会流行的设计风格
简洁的表现形式来满足人们对空间环境那种感性的、本能的和理性的需求,这是当今国际社会流行的设计风格
客厅
现代简约风格强调的是“时尚、实用”的家居设计理念,但并不仅仅就是整个装修中的简单
卧室
简洁的表现形式来满足人们对空间环境那种感性的、本能的和理性的需求
发布于2015年11月27日
@声明:上述内容由装企自行上传
来源:建辉装饰公司
<<上一篇
掌上明珠
下一篇>>
富力新城108㎡现代轻奢风格装修案例







