五山花园,68㎡两室一厅现代简约风
户型:二居
风格:现代简约
面积:68㎡
装修方式:全包
装修工期:60天
位置:五山花园五期
造价:10万元
方案说明
日光温柔的漫进室内,舒服的让人想随光跳舞。做饭、阅读和玩耍,感受家的质感和温柔,不由得会有一种幸福感氤氲开来。业主对家的描述很清晰,一进去就处处能感受到温暖。所以就有了这次的合作,也非常感谢业主对我们的信任。
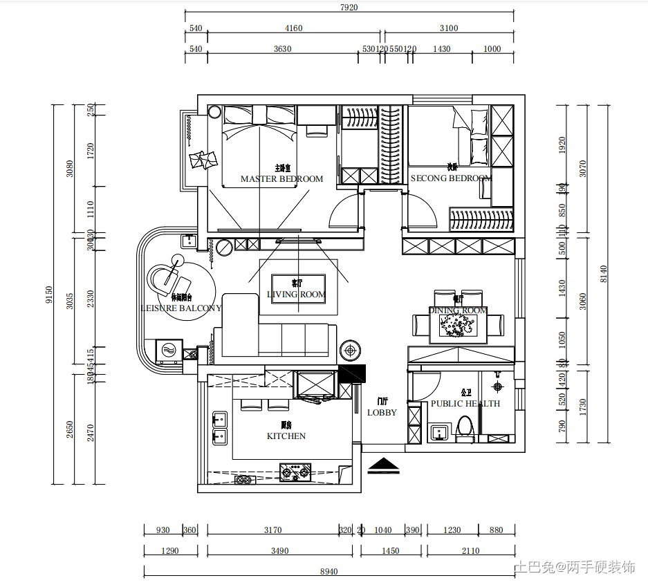
户型图
格局上进行了微调,我们把原来的生活阳台与厨房进行合并,构建成一个更大的厨房空间,厨房入门用联动的推拉门,更好的引入光。稍微移动了下次卧的墙体,让主卧获得更大的空间然后打造一个属于主卧的小衣帽间。在软装的搭配上,引入柜体满足业主对收纳的需要。
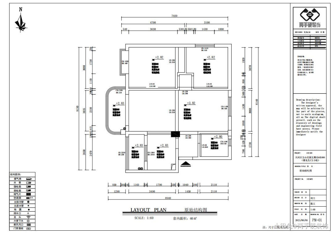
原始平面图
玄关
推门而入,右手边便是到顶中空的玄关柜,满足日常进出的收纳需求。储物、换鞋、整理衣冠,小小的玄关功能齐全
从客餐厅看向玄关的视觉
客厅
用灯光营造闲适的客厅氛围,主灯与筒灯相结合的方式~电视背景墙上方吊顶加筒灯,增加空间的流动感,主灯与筒灯的同时应用,也让光线更加柔和
客厅阳台还是保留原有的布局,墙体去掉然后并入客厅,视野也变得开阔。借助巧力还原空间本原,将空间感更加具象更有包裹性,如同人与空间在进行一场谈趣十足的对话
开阔的落地窗让客厅享有足够的自然采光,家具也是设计师和业主一起精心挑选的,小半边的电视柜小而精致,选择不做到顶的电视柜让客厅空间看上去也开阔了很多。
餐厅
通过整体的搭配打造优雅闲适的就餐环境,经典的黑白色餐椅,搭配几何户型的精致吊灯,提升了就餐区的氛围感
餐边柜是中间开放式摆放和抽屉、柜门的组合,微水泥材质与金属线条的柜体形成视觉的对比。上方酒柜,下方收纳,中间摆放一些装饰品,用最小的空间打造出优雅的餐厅空间,让收纳充足的同时也保证了视觉的饱满多样感
餐厅的秘密“藏”在了木质的卡座设计上,拉开来下方还可以起到储物的作用。用生活里的日常点滴,构成令人心动的元素,施展着治愈的魔力
厨房
厨房是比较常见的U型厨房,更符合烹饪习惯的动线走向
把原来的阳台与厨房之间的墙体拆掉后合并,厨房空间变得更加透气敞亮。吊柜与地柜运用深灰色与白色进行呈现,多个柜门收纳也方便业主把常用的与不常用的物品进行归纳划分,完美优化日常使用的便利性
厨房延续整体空间的现代格调,在深灰色、浅灰和白色之间,让厨房看上去也更加整洁明亮。设计让橱柜有着硬朗雅意质感,让人可以尽情享受烹饪本身的乐趣
厨房加装电热水器,让多空间都能用上稳定温度的热水
卧室
主卧室一般都会有的梳妆台,采用小巧精致的桌子作为梳妆台。多抽屉增加收纳,将化妆品充分收纳与抽屉里
主卧延续客厅的整体色调,麻布硬包的床头背景配上细腻亲肤的床品,品质生活展现的恰到好处
主卧空间借用了小部分原次卧的空间,重新砌墙打造出一个主卧专属的小衣帽间,弥补了主卧没有衣帽间的痛点。步入式的衣帽间无传统柜体开敞式的设计,更显品质感,看似简单的空间分割,实则是经过了深思熟虑的考量和揣摩,合理且有序
卧室必然是要温馨的,主卧飘窗保留原有的基础。闲暇之余,在这里面对着室外的老城区,也会是一种居家的享受
卫生间
干湿分离的卫生间,一般应用在柜体的黑色不透明玻璃门也应用在了卫浴间这里,增加私密性
改造后重新整合的卫生间,原始的收纳问题及干湿分离都得到解决。镜柜和悬空的洗手台,以及洗手台衍生出去的一小块石材板面,下方刚好可以满足马桶的位置,在满足收纳需求的同时又方便清洁打扫
实用的墙面置物架安排上
阳台
并合后的阳台和客厅无隔断连接,空间也更加开阔。设计不止是装饰,更以自然造境,以空间写境。阳光透过窗进入室内,给自己从社交模式切换到生活模式一个小小的仪式感
阳台打造洗手池及浴室柜,放置洗衣机和干衣机,增加收纳空间,同时解放阳台解决晾晒问题
次卧
次卧室目前作为客卧以及书房功能使用,业主说后期可能考虑再重新设计作为孩子的房间。简约是设计的主调,室内做榻榻米和柜体收纳,以实用为主
墙面做两个方框小盒子,一些软装饰品可以放置上,让房间的布置精致有加,哪怕是为亲友提供的短暂居住,也温婉而美好
象牙灰衣柜衍生主卧空间一样的静谧
发布于2022年04月21日
@声明:上述内容由装企自行上传
来源:两手硬装饰





































