200㎡现代简约风格,设计带来品质生活
户型:三居
风格:现代简约
面积:200㎡
装修方式:全包
装修工期:75天
位置:怀柔小区
造价:88万元
方案说明
夫妇俩对待生活是认真积极的,希望家是一个舒缓与平静的地方,且要有质感的,在家时可以做一切喜欢的事,弹琴/拼图/游戏/聚会/做美味食物......
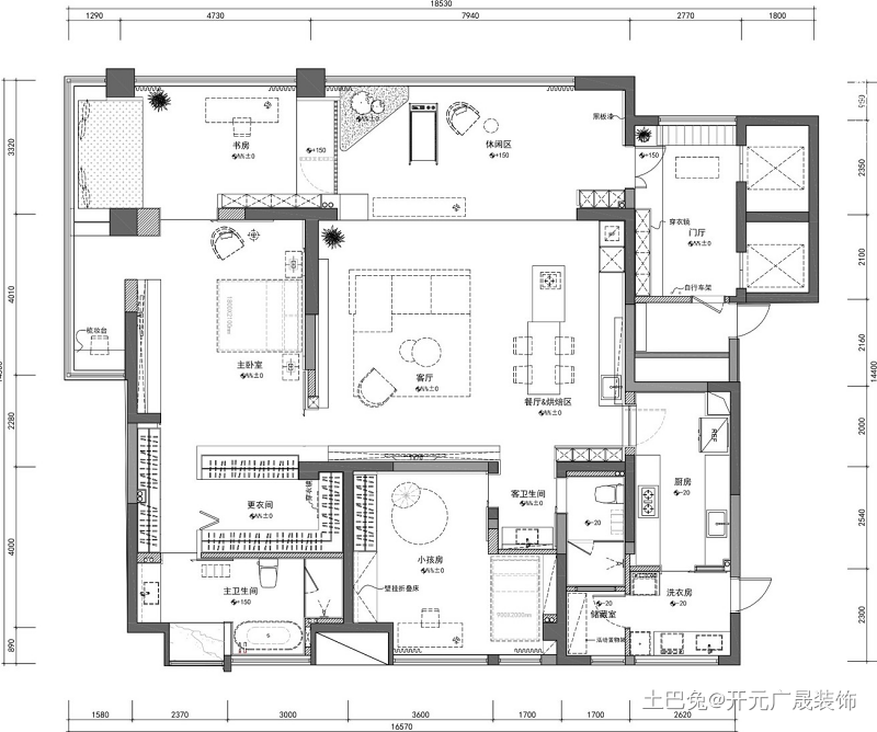
户型图
平面布局图
客厅
卧室
卫生间
其他
发布于2020年04月08日
@声明:上述内容由装企自行上传
来源:开元广晟装饰
<<上一篇
160平米现代风格装修
下一篇>>
以简单到极致为追求 高级灰的质感美













