南山脚下温馨3居,84平现代简约风
户型:三居
风格:现代简约
面积:84㎡
装修方式:半包
装修工期:119天
位置:铭筑荔苑
造价:16万元
方案说明
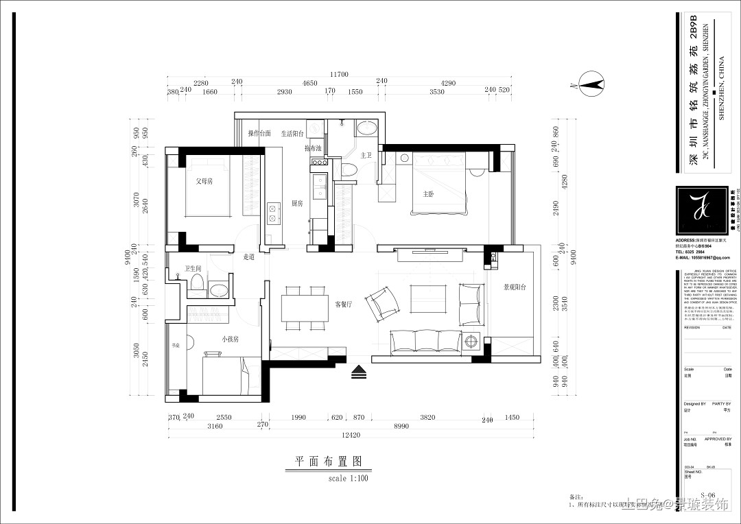
本案业主是6口之家,喜欢现代简洁的风格。客餐厅区域需要一个鞋柜的收纳及展示的功能;主卫需要干湿分区,取消浴缸扩大淋浴区及衣帽区的空间;生活阳台需要封窗归入室内。在设计上的主要优化是打造了一个多功能鞋柜及餐边柜,扩展了厨房及衣帽区域的空间。
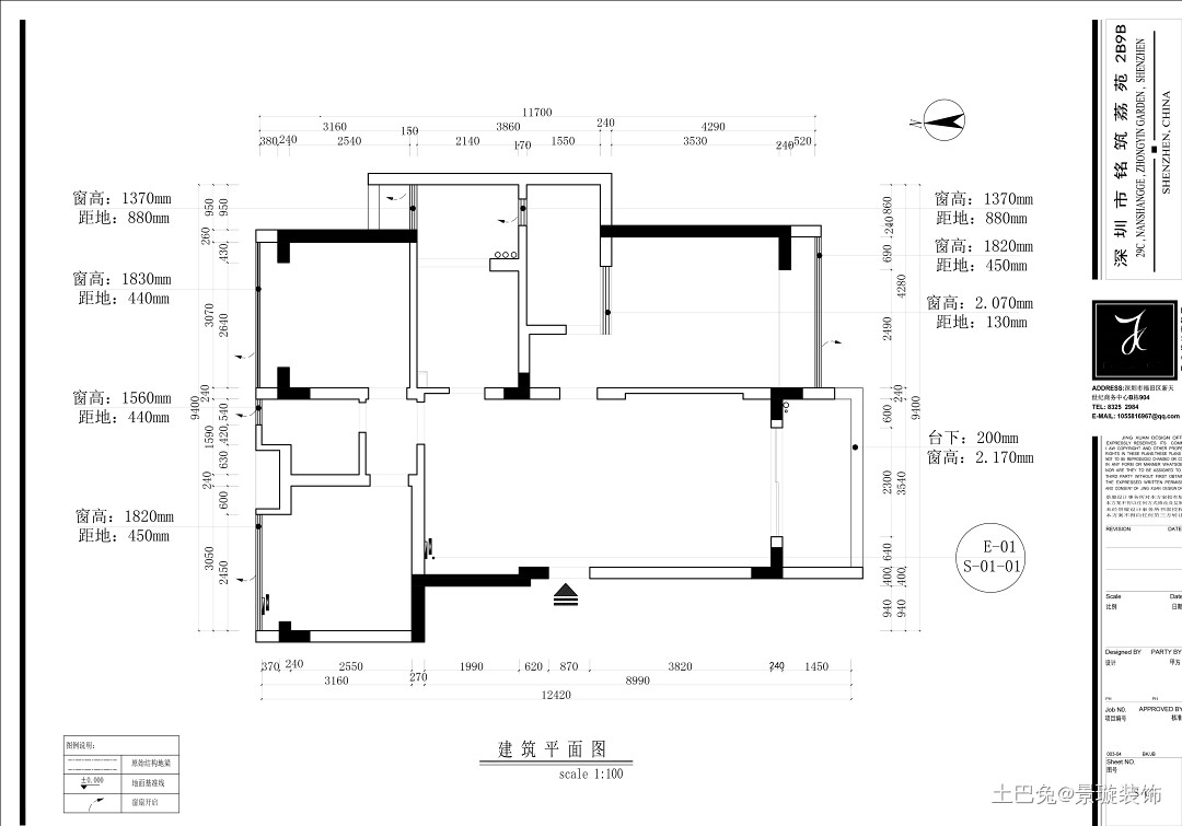
户型图
户型方正,采光通风好,空间利用率高。
1、扩大了厨房的空间,增加操作台面;
2、主卧增加了的衣帽区域。
客餐厅所有的门都是一门到顶,采用极简的木质背景,空间体现出既现代又简约的风格。
原有的电视背景空间比较传统和保守,设计后主卧室门的材质与电视背景墙护墙板的材质相同,延伸了电视背景的纵深感。电视背景墙的护墙板采用抽缝的手法,增加了客厅背景的层次感。
沙发背景采用硬包材质,颜色比较柔和,隐约给人以舒缓放松之感。
餐厅
餐桌及吊灯彼此呼应,更具设计感。
因为入户门区域的空间有限,设计师将多功能餐边柜和鞋柜的功能巧妙的结合在一起,又运用透明的磨砂玻璃便于展示艺术品,兼具了功能性和美观性。
厨房
封闭式厨房
将生活阳台归纳到厨房空间,增加了厨房的操作台面及收纳空间。
卧室
主卧简洁明快,看上去十分素雅,让人感到温馨舒适。
卫生间
卫生间的浴室柜台面延伸到马桶水箱上方,增加和延伸了台面的使用功能。
采用嵌入式悬空的马桶,清理卫生无死角,兼具时尚现代感。
开放式阳台
阳台是一个充满梦想的地方,也担负着居住者放松身心的期望,可以在此呼吸新鲜空气、晾晒衣物、摆放盆栽。
屋主家位于大南山脚下,随意种植一些绿植,便有“采菊东篱下,悠然见南山“的意境。
儿童房
业主家有两个小孩,儿童房按照小朋友喜欢的颜色,在满足居住的情况下采用松堡王国的上下床布置,体现整体空间的童贞,并且打造了丰富的收纳空间。
儿童房的衣柜同时起到了收纳及展示的作用,衣柜的侧面可以很好地收纳各类儿童玩具。
衣帽间
开放式衣帽间在视觉上拉大空间面积,朝卧室的一面衣柜兼具隔断、收纳和美观的功能。
发布于2021年10月24日
@声明:上述内容由装企自行上传
来源:景璇装饰

































