107平现代简约装修,简约舒适全都有
户型:三居
风格:现代简约
面积:107㎡
装修方式:半包
装修工期:60天
位置:金田花苑
造价:14万元
方案说明
本案是一套107㎡的三居室户型,户主是在广州打拼的90后,希望这间辛苦打拼下来的屋子能够符合自己的喜好,以黑色为主,打造一间现代简约的房子。
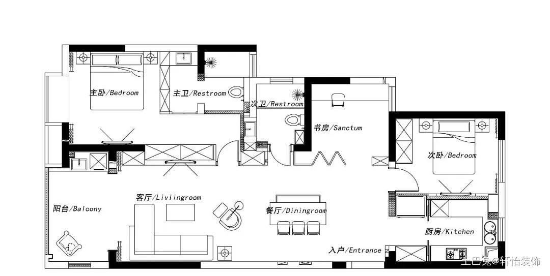
户型图
客厅
这个沙发看起来就让人很想坐上去,圆桌充满线条的美感,地毯更是既好看又实用。
餐厅
黑色的餐椅,白色的花瓶,充满质感的灯,符合年轻人的审美,简约好看,现代感满满。
卧室
木纹的地板实用耐看,卧室里有年轻人普遍喜欢的飘窗,实用美观全都有。
书房
灯的造型很独特,像水母一样美,黑色的书桌和书架既美观又不易脏,充满个性,
发布于2022年07月29日
@声明:上述内容由装企自行上传
来源:轩怡装饰
<<上一篇
82㎡的简约蓝色调,背景独具特色
下一篇>>
《暗厅老房》现代原木风








