330㎡万科璞悦山,现代风格装修
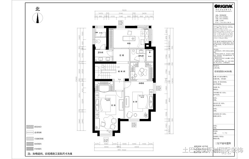
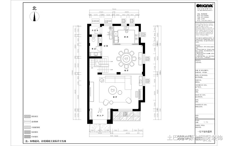
户型:别墅豪宅
风格:现代简约
面积:330㎡
装修方式:全包
装修工期:50天
位置:万科璞悦山
造价:45万元
方案说明
设计,回归“家”的本质,要先处理好人与人的关系,共生又独立、聚集又分散。在“家”学会慢煮生活,感受生活被那些细碎的温暖。
细细品留白, 慢慢写生活。
归空间本质,廊道的“留白”亦是对生活的尊重,空间调性亦是回归居住空间本质的模样。
修建一所建筑中的“建筑”,赋予室内空间“有机”空间,透过“空间”看空间,穿过空间延续空间的秩序感,在不同的角度想象和品味住宅的另一种可能性。
空间上延续“留白”的肌底、温润的暖木和有秩序的灯光,映射的不是色彩调性的温情而是创造家中温情的环境,设计师希望营造一个空间的美学,把房子变成家一所有温度、情感的居住环境,回归到生活本来的模样。
客厅
餐厅
卧室
卫生间
发布于2020年09月25日
@声明:上述内容由装企自行上传
来源:原创国际装饰
<<上一篇
南方花园--你的家,我们帮您来装饰
下一篇>>
高鑫家园














