100平现代简约风装修,安静时尚又舒适!
户型:三居
风格:现代简约
面积:100㎡
装修方式:半包
装修工期:60天
位置:亚运城媒体村
造价:15万元
方案说明
本案是一套100㎡的现代简约风三居室户型,业主喜欢一个安静,时尚,看上去明朗宽敞舒适的家,来消除工作的疲惫,忘却都市的喧闹。
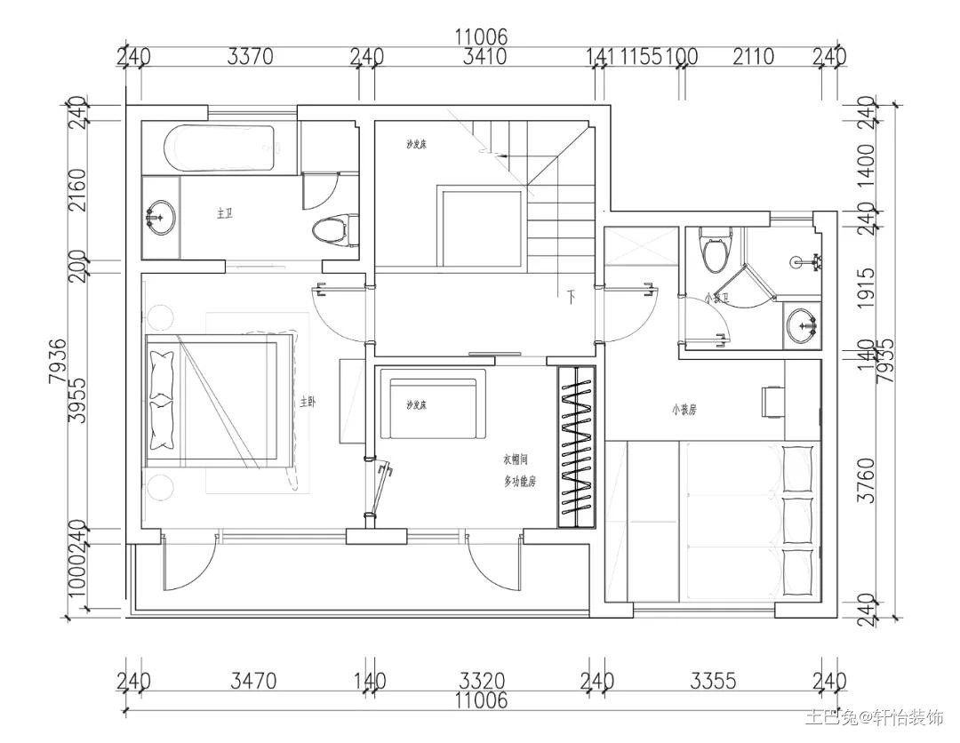
户型图
客厅
客厅空间开敞、内外通透,去繁从简,给人一种简简单单、清清爽爽的感觉。
餐厅
浅色原木餐桌搭配简单装饰品和长方形吊灯,暖黄的灯光让餐厅变得无比温馨。
卧室
床头的吊灯采用线与球形的结合简单又有设计感,嵌入式的壁柜节大大省了空间
衣帽间
顶天立地式衣柜满足业主的储物需求,旁边的全身镜可以让业主随时看到自己的穿搭,更好的搭配自己的着装。
发布于2022年07月21日
@声明:上述内容由装企自行上传
来源:轩怡装饰








