115㎡南山临海揽山-现代简约
户型:三居
风格:现代简约
面积:115㎡
装修方式:全包
装修工期:99天
位置:新世界临海揽山
造价:25万元
方案说明
不需要繁杂的造型绚丽的色彩,简单平和就是岁月静好的样子,阳光照进来,微风吹起纱帘的柔和,开始慢慢接纳这一切,与繁杂的窗外和解。
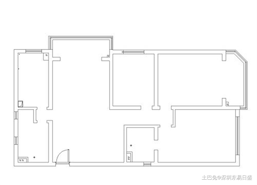
户型图
当浪漫、华丽的轻法式结合简约的设计
透露着一份清新奢华的美态
同时沿袭了法式的传统优雅与贵族气息
住宅变得浪漫、优雅、舒适、自在
空间以现代简约为设计手法
在展示空间现代感的同时
也给人一种典雅的生活意境
开阔式的空间布局纳入更多的自然的光线
令空间通透而明亮
充满温柔浪漫感的客厅,优雅的线条、精致的雕花刻画出立体的感觉,同时延伸了空间感。
整体在保留了法式韵味的同时又传达出意式轻奢的时尚感,奶白色调作为空间的主色,经典永不过时。
餐厅
快节奏的生活丝毫补能改变都市人对家的品质要求,浪漫的法式,优雅的餐具,精致的灯饰。
餐厅空间由内而外散发出舒适与高级,利用带有温度感的白色,将它的百搭与精致唤起淡淡的优雅氛围。
厨房
奶白色与原木色共同构成开放式的餐厨空间,低饱和度的色彩搭配摒弃一切繁杂元素的干扰,让居者在用餐时光尽情享受食物本身。
卧室
独立衣帽间与卫生间,开阔的梳妆台与休闲区,功能丰富的卧室空间在颜值拉满的基础上,最大限度的提升使用者的便利性。
卫生间
卫生间采用干湿分离设计,安装了防水透光的玻璃门,实用性很强。
洗手台安装了镜柜和盆下柜,收纳空间也超足的,这都是去繁从简的优化。
始终如一的温柔配色将平和植入内心,舒适度拉满,生活悠然自得。
发布于2023年05月21日
@声明:上述内容由装企自行上传
来源:深圳东易日盛



















