三花现代城
户型:二居
风格:现代简约
面积:70㎡
装修方式:半包
位置:恒高家园
造价:6万元
方案说明
人为的设计生活方式,是为了努力去创造一种更好的生活状态,设计就是空间、色彩、设计回归本位
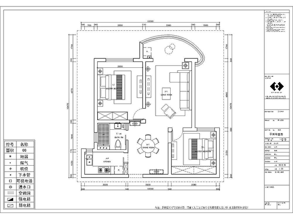
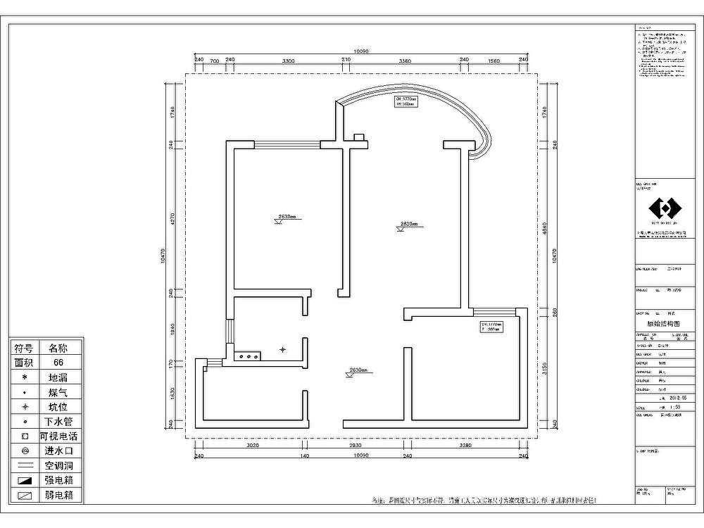
户型图
人为的设计生活方式,是为了努力去创造一种更好的生活状态,设计就是空间、色彩、设计回归本位
人为的设计生活方式,是为了努力去创造一种更好的生活状态,设计就是空间、色彩、设计回归本位
客厅
人为的设计生活方式,是为了努力去创造一种更好的生活状态,设计就是空间、色彩、设计回归本位
人为的设计生活方式,是为了努力去创造一种更好的生活状态,设计就是空间、色彩、设计回归本位
发布于2016年06月20日
@声明:上述内容由装企自行上传
来源:上海大显建筑
<<上一篇
98㎡三居室,暖色调空间越看越喜欢!
下一篇>>
108㎡顶复设计,无敌采光!







