万科城棕榈湾-后现代风格-别墅
户型:别墅豪宅
风格:现代简约
面积:300㎡
装修方式:半包
位置:棕榈湾
造价:50万元
方案说明
设计理念:传统的墙面造型看得太累赘了,所以设计中都是以大块面来体现造型,在整体中考虑细部的变化。
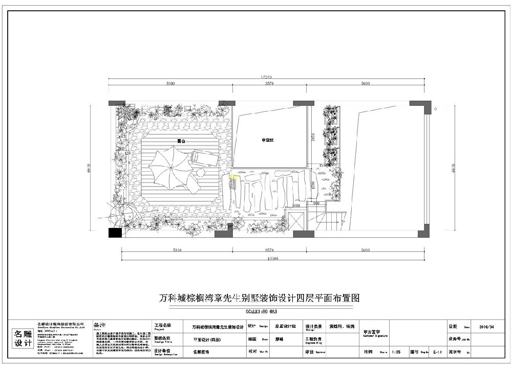
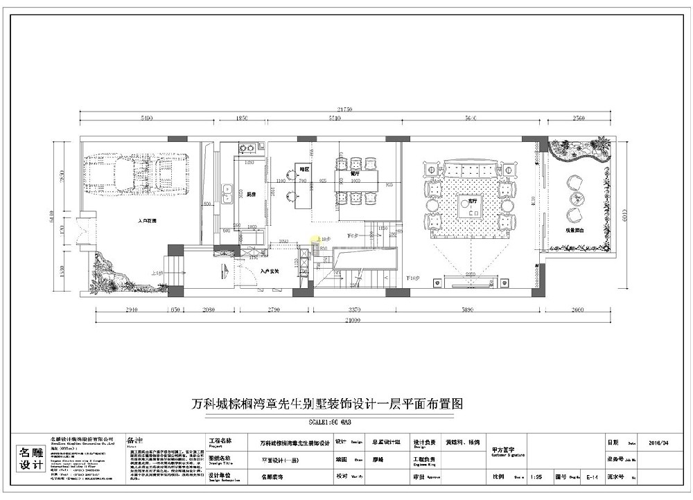
户型图
万科城棕榈湾地下室平面布置图
万科城棕榈湾二层平面布置图
万科城棕榈湾三层平面布置图
万科城棕榈四层平面布置图
万科城棕榈湾一层平面布置图
客厅
万科城棕榈湾后现代风格客厅
卧室
万科城棕榈湾后现代风格卧室
其他
万科城棕榈湾后现代风格地下室
发布于2018年07月24日
@声明:上述内容由装企自行上传
来源:名雕装饰
<<上一篇
金隅泰和园2
下一篇>>
112㎡暖棕色系私人住宅











