110平现代简约,舒心的家庭环境
户型:三居
风格:现代简约
面积:110㎡
装修方式:半包
装修工期:60天
位置:锦绣趣园
造价:15万元
方案说明
本案例是110㎡三室改造,主打现代简约风。业主希望各个空间的功能尽可能面面俱到,设计师考虑到业主需求,将各大功能空间尽量实现利用最大化,以满足今后生活需求。
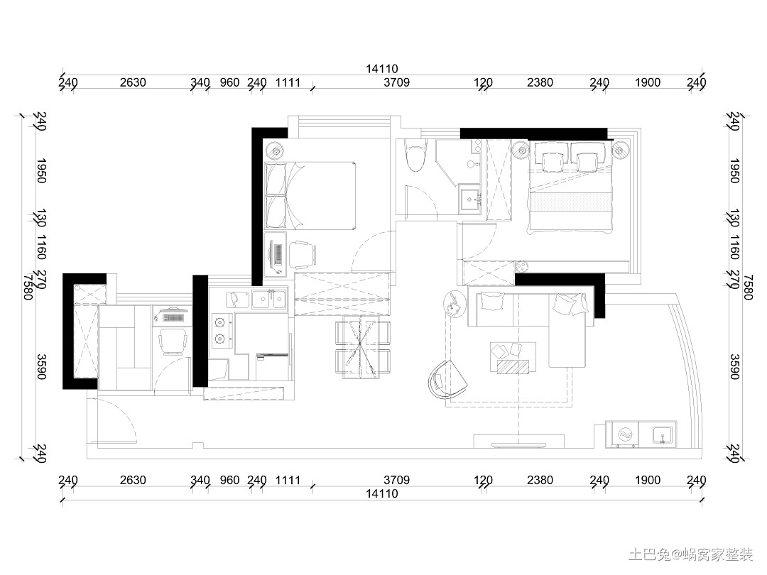
户型图
客厅
客厅的是暖暖的色调搭配,突然间感觉空气都充满了家的温馨感~绿植更是给人清爽的感觉。
餐厅
吊灯构造简单却不失创意,实木餐桌不用刻意雕琢,无需繁杂点缀,有一种传统韵味在室中流传
卧室
榻榻米设计是一种时尚自由的追求,满室的是阳光,也是温暖。
卫生间
卫生间安装置物架是非常有必要的,物品各有归属,为家人带来更舒心的家庭环境。
发布于2022年07月12日
@声明:上述内容由装企自行上传
来源:蜗窝家整装
<<上一篇
72平米后现代风格
下一篇>>
大平层4房改2房,当代人的断舍离!








