80㎡老房翻新·梦幻拼接两居室
户型:二居
风格:现代简约
面积:80㎡
装修方式:全包
装修工期:70天
位置:桃浦白丽路
造价:10万元
方案说明
本案例是二手房整体翻新,业主是一家三口居住,有个两岁的女宝宝,家人偶尔过来帮忙照顾宝宝,喜欢温馨舒适的简约风格,要求材料环保。
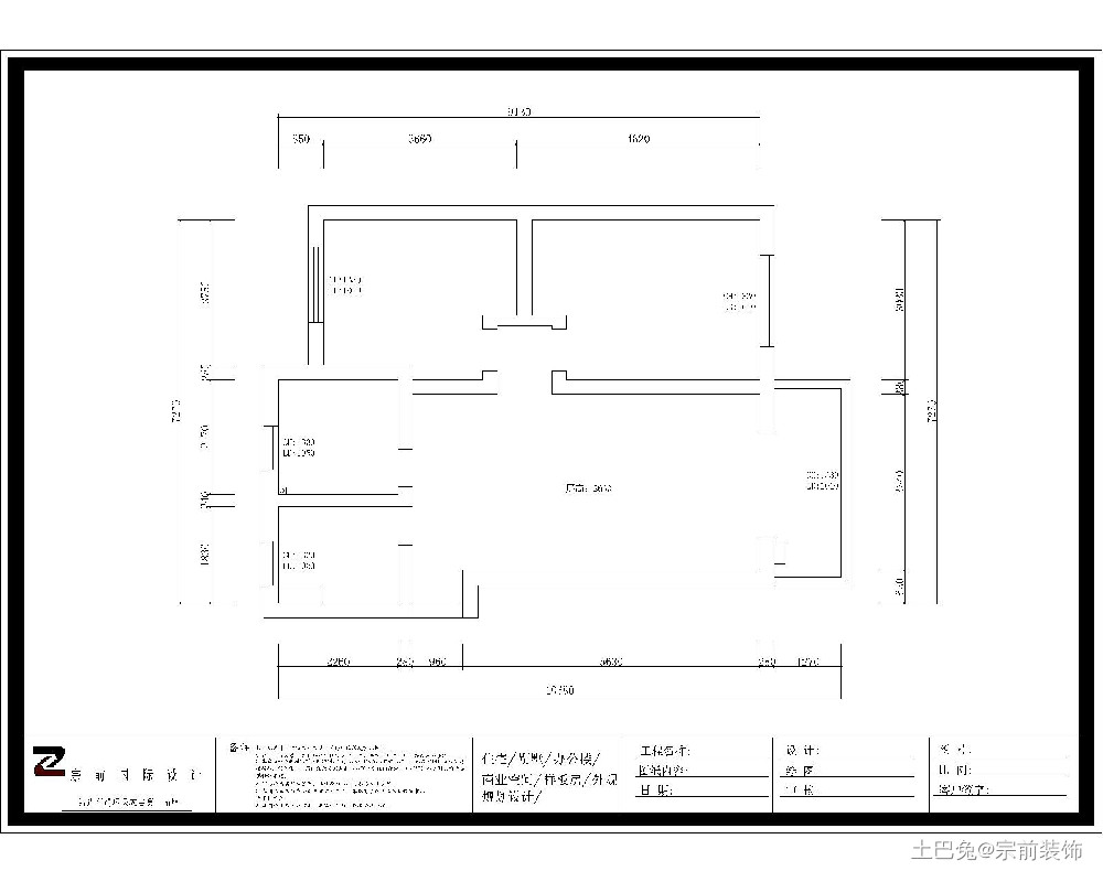
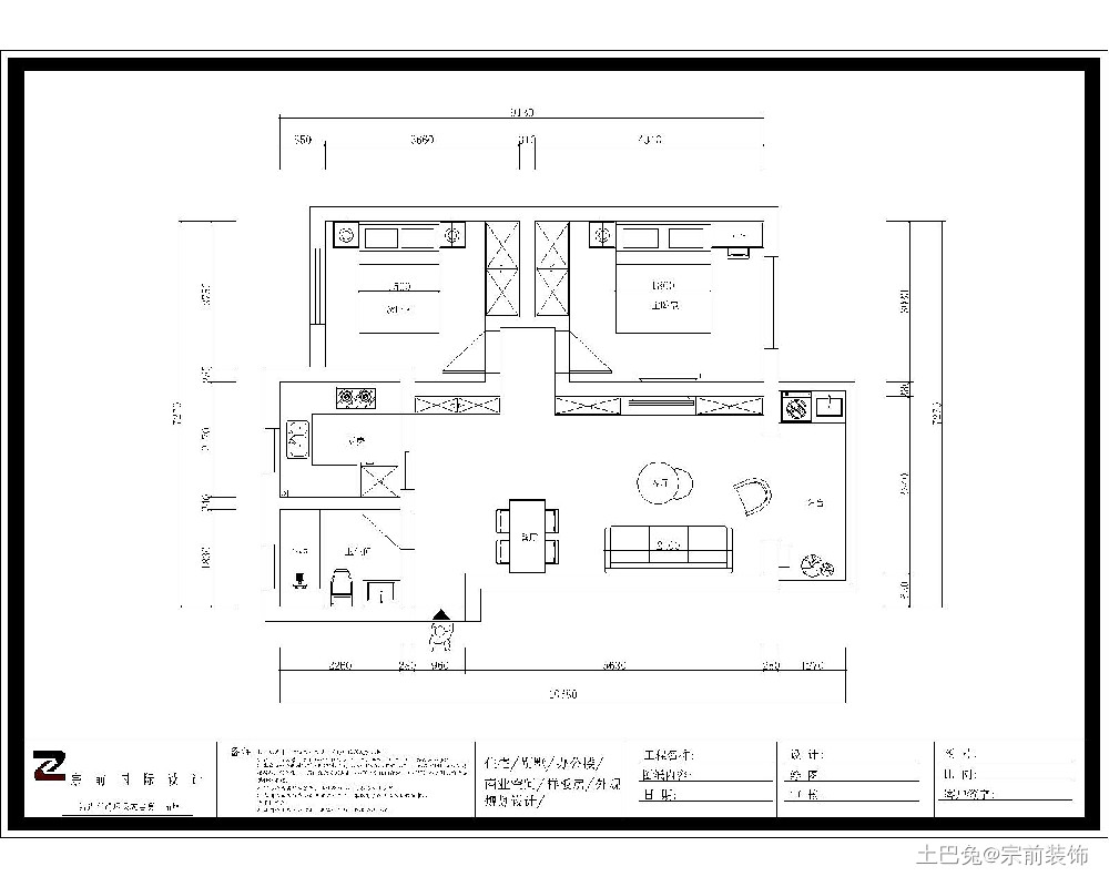
户型图
原始户型图:经典的两居室布局,将动区和静区一分为二,客厅带阳台,采光较好。
方案设计图:空间布局没有变动,客餐厨一体化设计,让整个空间显得更加宽敞。整个空间装修选用的材料均为绿色环保型材料,很适合有宝宝的家庭。
客厅
客厅具有超强的收纳空间,整墙打造收纳柜,选择弹力按压型柜门,表面上没有痕迹,所以整体看起来更加美观。
餐厅
另一侧的墙面采用色彩拼接设计,顶面吊顶设计筒灯作为辅灯,灯光更均匀。
厨房
卧室
蓝绿色的墙面设计更加清新浪漫。
嵌入型衣柜的设计+硬包墙面设计,充满了线条立体感。
床头柜不一定要对称,一侧做梳妆台一侧放床头柜,非常实用。
卫生间
卫生间做独立卫生间,地面做拉槽设计,更防滑更安全。
阳台
发布于2021年03月15日
@声明:上述内容由装企自行上传
来源:宗前装饰
<<上一篇
64平两室一厅,简单且温暖
下一篇>>
余女士的新居













