环宇家园—港式轻奢风的安逸
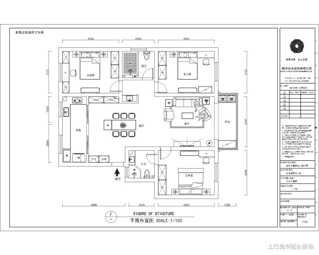
户型:三居
风格:现代简约
面积:129㎡
装修方式:半包
装修工期:90天
位置:环宇家园
造价:15万元
方案说明
本案例业主夫妻带女儿居住,偶尔老人过来小住一段日子。整体的轻奢搭配,灰色仿石材地砖,墙面偏柚木色护墙板饰面,搭配局部无主灯设计烘托氛围。让人不知不觉中感受舒适安逸。
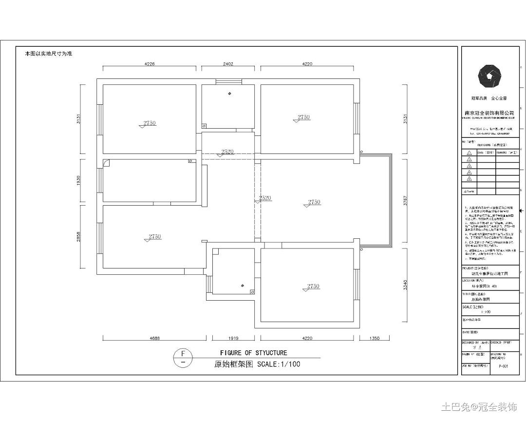
户型图
玄关
进门玄关鞋柜,满做到顶,收纳功能极其强大
客厅
客厅背景简洁大气,局部护墙板搭配留白墙面
餐厅
长条实木桌椅格外抢眼
厨房
厨房半开放式满足视觉效果,又保证油烟不外跑
卧室
家具也是简约风,有质感
卫生间
定制洗脸池效果非常棒,延伸感很好
发布于2022年05月25日
@声明:上述内容由装企自行上传
来源:冠全装饰
<<上一篇
65平心动的现代简约风,每个空间都精致
下一篇>>
万科金域中央














