140㎡浪漫简约风,复古与现代完美融合!
户型:三居
风格:现代简约
面积:140㎡
装修方式:半包
装修工期:120天
位置:裕景花园东区
造价:17万元
方案说明
本案是一套140㎡的三房一厅的的家庭户型,业主希望打造一个高级实用的现代简约风,同时希望融入一些美式复古元素,通过颜色之间的对比碰撞,造成视觉上的冲击感。
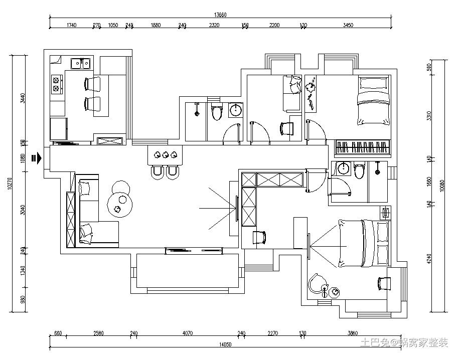
户型图
3房1厅2卫
客厅
客厅的沙发是业主千挑万选来的心头爱,复古美式风情乍一看似乎会与简约的整体空间相冲突,但也正是这种冲突,将复古与现代完美融合,给我们带来了一个浪漫的简约之家。
餐厅
餐桌与椅子形成颜色对比,家具的颜色搭配带来了视觉冲击的效果。
厨房
开放式的厨房,拥有独立吧台,布局宽广,让我们与家人有更多的互动空间。
卧室
布局合理,空间宽广, 白灰原木色的搭配,增添了温暖的气息。
发布于2022年05月08日
@声明:上述内容由装企自行上传
来源:蜗窝家整装
<<上一篇
城市中的一抹温馨绿·光
下一篇>>
创意店铺








