新中式风格打造出浓浓禅意的家居空间
户型:三居
风格:中式现代
面积:105㎡
装修方式:全包
装修工期:100天
位置:华润城
造价:20万元
方案说明
本案采用了现代的设计语言来表达东方的意境,用新中式风格打造出浓浓禅意的家居空间,隐去传统中式繁杂的设计表现,用减法来表达东方元素。简单的语言阐述东方意境,希望能给现代人一种静谧的生活空间,身处繁华都市太久,便渴望一丝静谧的身心归处。 阳光、茶香、听风、听雨,你应该享有这种姿态,生活的诗意而满足。
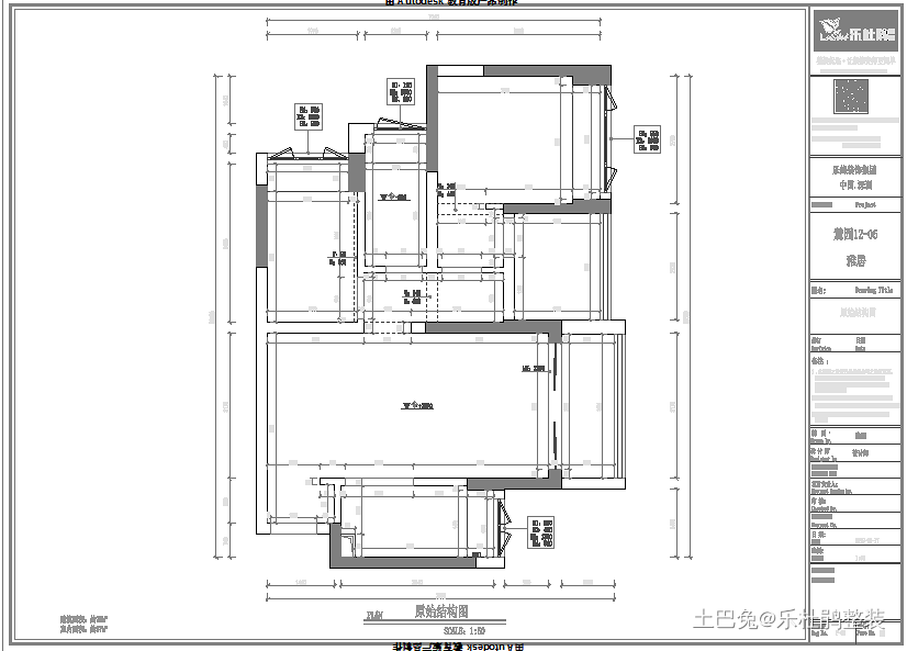
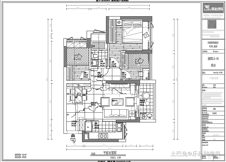
户型图
玄关
一曲素琴,一书墨痕,半卷清词,书香墨韵清歌作伴,满地花香,琴卿皆醉,满室风雅。静酿优雅,对话时光,将迁人骚客的情怀风骨融入设计。 每一本书、每一件艺术品,都意味着一次历史和趣味的探索之旅,也是主人行走的印记。
客厅
用极简的线条与淡雅的纯色相搭配,创造质朴却不失品位,含蓄但不单调的生活氛围。
空间在布艺上还是以棉、麻为主,客厅的茶几上的陈设装饰,暖色的点缀,使空间的整体气质显得更为精致与高贵。
餐厅
空间的色调,大多选用了比较素雅的米白、深灰、浅啡等纯色的块面。
卧室
“春来出门访友,夏季荫下纳凉,秋天林间游走,冬日围炉煮茶”,四季应有其顺应之事物,冬日的茶。
一直是设计师一场醒不来的深深的梦,茶桌上的一抹风光,悠悠禅意中透露着一丝优雅闲适的讲究。
“春来出门访友,夏季荫下纳凉,秋天林间游走,冬日围炉煮茶”,四季应有其顺应之事物,冬日的茶。
发布于2019年09月03日
@声明:上述内容由装企自行上传
来源:乐杜鹃整装
<<上一篇
258平方的中式排屋设计
下一篇>>
案例集19













