【三夏光年】
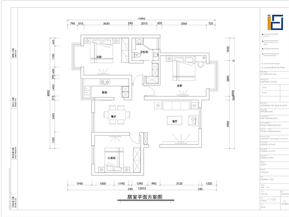
户型:三居
风格:北欧极简
面积:90㎡
装修方式:半包
装修工期:97天
位置:同济华城
造价:7万元
户型图
其他
发布于2019年01月10日
@声明:上述内容由装企自行上传
来源:欧碧雅装饰
<<上一篇
北欧风
下一篇>>
70㎡北欧风,轻奢优雅,恰到好处的精致























