70㎡北欧风,轻奢优雅,恰到好处的精致
户型:二居
风格:北欧极简
面积:70㎡
装修方式:半包
装修工期:60天
位置:天河豪景花园
造价:6万元
方案说明
业主情况:刚结婚的小夫妻,两人住,对设计师很认可,对装修很满意。设计说明:初次与男女主见面是因某平台推荐,从事电商服装工作,偶尔需要拍摄需要,所以在设计上从墙面、灯光、摆件等化重点。
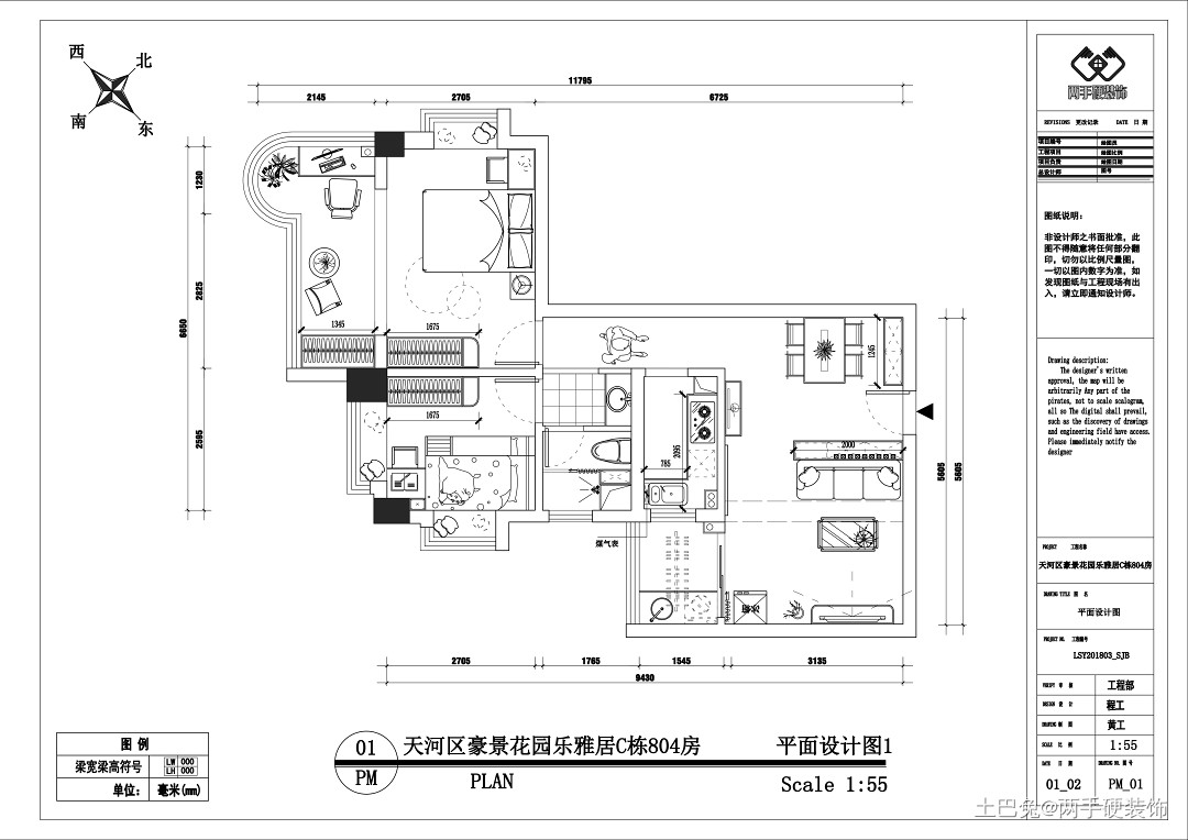
户型图
改造后:
1,将原本鸡肋过道纳入主人房后,儿童房利用卫生间的干湿分区的侧边开了一个门洞,为了让生活更加便捷,设计师将有限度的空间,最大限度的变舒适合理。
2,各个区域增加了多处储物空间。
原始户型:
1.卧室走廊区域面积比较浪费
2.储藏空间较小
3.洗衣机、干衣机需要一个合理的位置
麻绳、装饰画、艺术玻璃瓶...每一个精心挑选的软装搭配都让空间充满了仪式感精致感,让家的质感体现在每一个角落
客厅
电视柜截然不同的表现形式,也让我们从不同的维度审视生活本身。柜子上精致、萌趣、简单的物件,帮助我们从生活中持续收集快乐
客厅沙发选择浅灰色背靠木色的矮柜,抱枕选择白色与纯黑色点缀,营造温馨精致的气息
茶几小景;榻榻米坐垫非常的应景
餐厅
餐厅则和客厅处于同一个空间,沙发后面背景柜体的台面,刚好可以作为餐厅的物品放置
饭点一到,水杯茶壶都要躲到别的地方,给热气腾腾的饭菜让位,悄咪咪的偷窥一家人的热闹时刻
餐厅背后是入户旁的一整面收纳柜,将零碎的物品规整到收纳柜中,同时留出存放临时小物件的格子
厨房
原厨房面积局促,将原本厚重的冰箱移到客厅,小电器都安排了适合的收纳空间。白色的橱柜+灰色的地砖,万年不变的美丽搭配
厨房细景,每一个小物件都尽显家的温馨
卧室
梳妆台是每个女人停泊梦想的天地,在卧室都必备一个梳妆台,以后的每一天都可以在这里梳妆打扮,开始精致的一天
床头一侧安置书架+桌子的组合,偶尔闲暇时刻,可以坐在这里,看会书,玩会手机,喝杯茶...享受静谧
两款不同的吊饰,挂在床头做背景,让单调的空间瞬间就灵动起来了~
主卧则极尽舒适;配色上,是温柔的棕灰白;木质的床头靠背,两侧的床头灯,也是精心挑选,呼应背景墙的变化,细节之处,尽显精致
整面墙定制到顶的衣柜,金色的门把手是点睛之笔
卫生间
洗漱台做了分隔,用来收纳不同种类的洗漱用品
包卫生间立管之后,利用柱子和墙面之间的空隙做一个壁龛,既美观又实用
卫生间选用的是玻璃门,通透性比较好
阳台
阳台才不是单一的区域,实际上我们从更实用、更多元、更有趣的角度和方式去完成阳台的设计,合理激发空间的更多可能性
走廊
整个案例围绕北欧风走,但是在设计过程中因金属元素的喜爱,逐渐走向小轻奢
发布于2021年12月05日
@声明:上述内容由装企自行上传
来源:两手硬装饰
























