轻奢大宅,盛世家族住宅,古典韵雅
户型:四居及以上
风格:欧式豪华
面积:210㎡
装修方式:全包
装修工期:80天
位置:锦绣香江山水园
造价:45万元
方案说明
优雅的气质,独特的品位,尤其对西式文化有一定的偏爱,但又不能缺少现代时尚的生活方式,故此方案定位为大气,时尚,品位,具有内涵的现代欧式的的装修风格。本案中整面的电视背景墙大胆运用石材的饰面板,在与体现空间的大气与档次,客厅吊顶运用西式元素的雕花板,基层衬上银镜来体现空间的灵动与时尚,再配上不俗的家具,软装及灯光的运用,体现啦此方案大气,时尚,品位的居住空间。
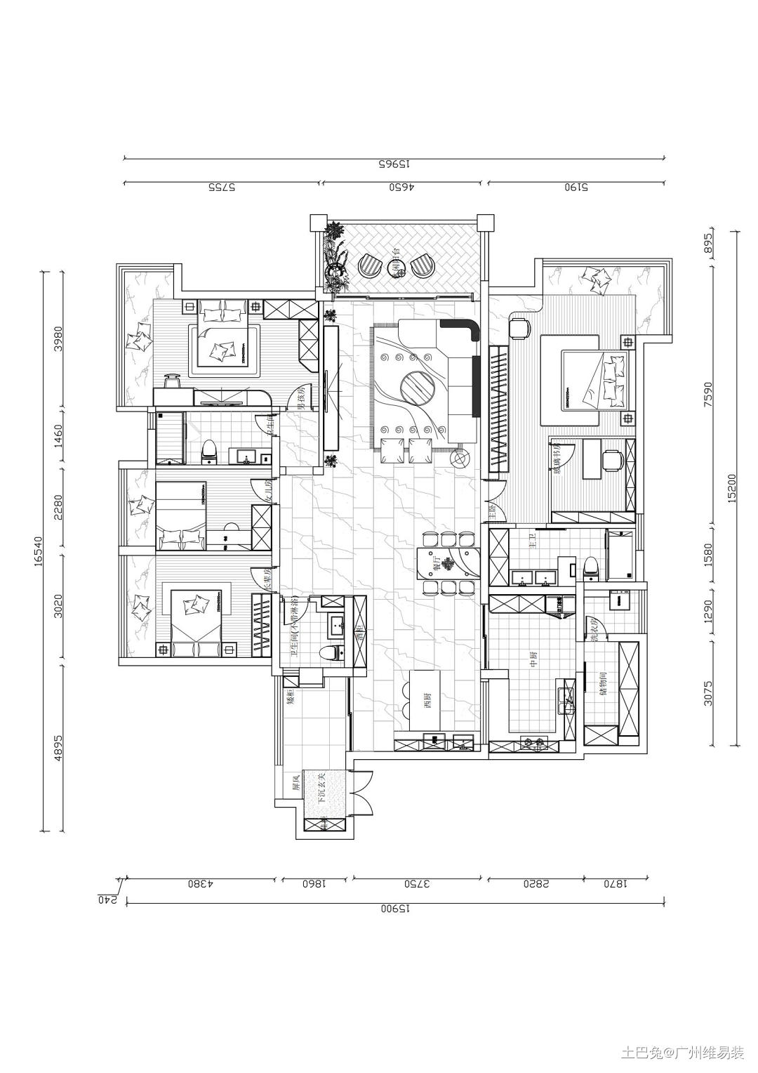
户型图
客厅
高调奢华的电视墙攫住目光,层层将华丽元素包覆
餐厅
经由多道细节仔细完成,由内而外菱格绒布暗花、水钻、明镜、钻带
厨房
精细如玻璃设计导角造型,将视线聚焦集中
卧室
是单一立面就带来奢华的视觉享受
儿童房
延伸贯穿空间的古典线条,加上白色喷漆,轻而易举融入风格
走廊
带来奢华的视觉享受。
发布于2022年11月27日
@声明:上述内容由装企自行上传
来源:广州维易装










