欧式生活,让你感受极致
户型:三居
风格:欧式豪华
面积:102㎡
装修方式:半包
装修工期:60天
位置:阳光城丽景湾
造价:11万元
方案说明
业主平时有在家会客需要,希望各个房间都能体现欧式偏古典的设计。壁纸也是欧式风格装修中经常使用的的元素,展现出一种华贵的感觉。
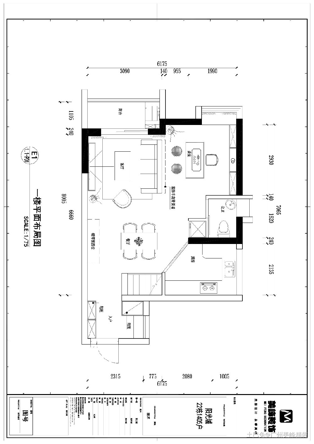
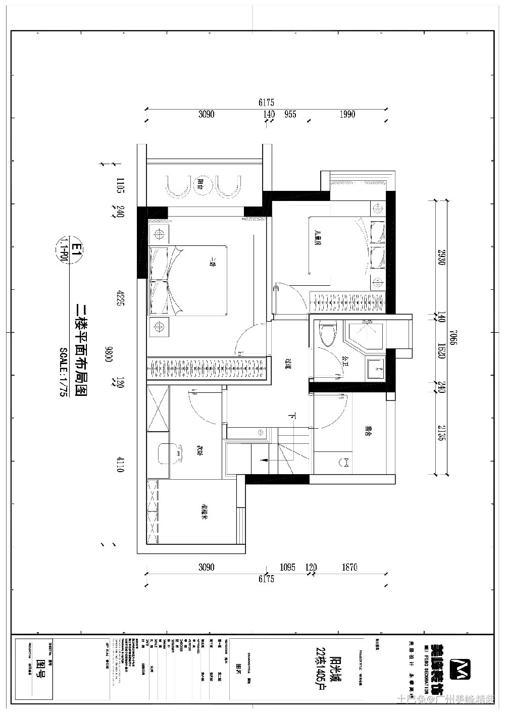
户型图
一层布局
二层布局
玄关
一进门就是玄关,有个比较宽敞的走廊。
客厅
客厅选用了真皮实木家具,吊顶。壁纸也是综合整体风格来搭配。
餐厅
定制了酒柜,增加了储物功能
卧室
卧室是女儿居住的,整体设计选用了香槟色系的软装。
发布于2020年10月11日
@声明:上述内容由装企自行上传
来源:广州美峰精装
<<上一篇
高奢极致风——优雅餐厅
下一篇>>
100㎡老房翻新,浪漫的法式复古风








