橙色一点,生活温暖!
户型:二居
风格:其他
面积:61㎡
装修方式:全包
装修工期:60天
位置:丰盛懿园
造价:60万元
方案说明
业主需求:业主是一对年轻的夫妻与他们的儿子,男业主偶尔会在家办公,男女主人都比较喜欢低调奢华的感觉,但是又不想单调的色系。同时小主人不希望自己的卧室太过幼稚,想要和爸爸妈妈房间一样的感觉。
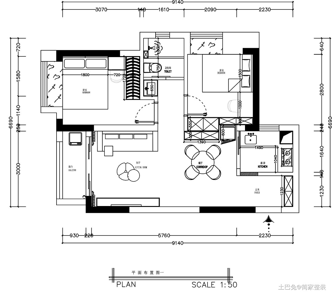
户型图
业主是一对年轻的夫妻与他们的儿子,男业主偶尔会在家办公,男女主人都比较喜欢低调奢华的感觉,但是又不想单调的色系。同时小主人不希望自己的卧室太过幼稚,想要和爸爸妈妈房间一样的感觉。
玄关
整体的玄关柜将整个家庭的鞋、包完美收纳。
客厅
黑色、灰色体现绅士的品格与克制,窗帘上方那一抹橙传递空间的温暖。灰色系的软装搭配,刚柔并进,更显空间的雅士与平和
整面的电视背景墙将客厅与餐厅相贯通,将这个客餐厅连结在一起。电视后面错位的装饰板将整个规矩的背景墙空间气氛打破。
餐厅
四人的圆桌足够这个三口之家。
橙色的椅面与客厅的那一抹橙色相呼应,整个客餐厅宛如一体。
业主一家比较喜欢吃西餐,美味的牛角包勾动着蠢蠢欲动的馋虫。
黄色的小花仿佛想要将人们的目光都吸引过去。
卧室
主卧灰色的装饰板与床的灰色相呼应,也与整屋的灰色相协调。装饰画与拉帘的橙色将整个空间的氛围点燃,沉静的灰色空间中的橙色将整个空间点亮起来。
简洁的主卧里将所有的目光都聚焦在这片丰富的床头装饰墙上。
飘窗给这个私密的主卧提供了一个与世界亲密接触的地方,可以在这里看书、小憩、晒太阳等等。
书桌上方简洁的黄色的置物架上放置着绿色的植物,书桌上线条简洁的台灯,这些都为偶尔在家办公的男主人提供一个轻松的环境。
开放式阳台
生活阳台放置着洗衣机与烘干机,家庭的日常晒衣也没有问题。阳光正好的时候可以在这里摆上一张小桌子几把小椅子,享受着这生活的美好。
儿童房
次卧床头大型装饰画上的橙色以及拉帘上的橙色与整个空间的橙色相呼应,飞跃的马匹装饰画将夫妻对于儿子未来的期望体现的淋漓尽致。
发布于2022年03月10日
@声明:上述内容由装企自行上传
来源:简家整装















