金科天玺367平米法式风格
户型:别墅豪宅
风格:其他
面积:367㎡
装修方式:全包
装修工期:60天
位置:金科天玺
造价:98万元
方案说明
设计理念:本案为经典法式联排别墅,设计风格围绕建筑外观做整体规划设计,室内结合园林外观内外呼应,打破常规,运用法式浪漫线条结合意式轻奢家具打造精致奢华的生活方式。
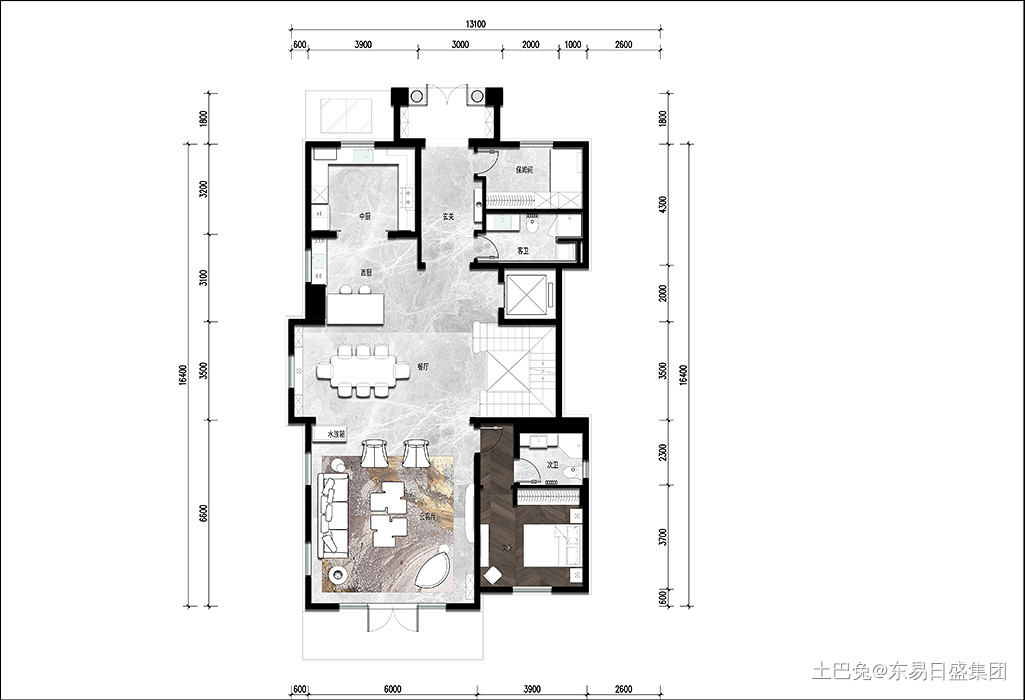
户型图
法式风格在造型上设计上,看是空架式的简单,实则更加复杂,要加入娇柔元素在其中,在选择材料、装饰上又极为注重搭配,奢华的装饰,甚至让人有种密集恐惧症的甜腻感,超繁琐的室内装饰。
玄关
设计消弭了局限而狭长的空间,三段式分布思路将区域功能、尺度加以延伸。简洁明亮的用色,让人踏入家中便能拥有好心情。
客厅
法式风格在造型上设计上,看是空架式的简单,实则更加复杂,要加入娇柔元素在其中
餐厅
餐厅多处采用金属线条设计,配上奢华的水晶灯,法式轻奢感扑面而来。餐厅墙设计成收纳功能强大的柜子,整体采用乳白色,高级又浪漫。
卧室
采用蓝白灰三色作为弟弟房的主色调,简约的窗帘配上清新的主色调,房间内配有特色的潮流装饰品,让空间整体更具活力与潮流感
主卧采用奢华的金属水晶灯,配上同系列的吊顶花纹,整体设计感十足。条形木饰面的存在,让空间造型感十足。
书房
多功能房设计了一个典雅高贵的吊顶灯,配上富有艺术感的墙面装饰物和钢琴,整个空间文艺风满满。整体采用简约化设计,木质地板增添了房间的书香气息。
发布于2022年09月07日
@声明:上述内容由装企自行上传
来源:东易日盛集团
<<上一篇
98平米轻奢风格装修
下一篇>>
京通苑100㎡现代轻奢






