110平浪漫的法式风美家
户型:三居
风格:其他
面积:110㎡
装修方式:半包
装修工期:60天
位置:珊瑚天峰
造价:15万元
方案说明
本案是一套110㎡的简约法式风3室户型,业主喜欢简约大气的风格,对原木色情有独钟,满足家里需要的储存空间,看起来要整洁大方,而且对家里的采光有一定的要求。
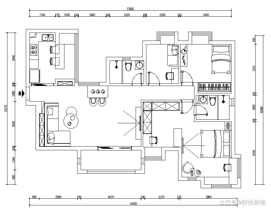
户型图
客厅
客厅的方块沙发真的把简约风格演绎的淋漓尽致,绿植的摆放位置很巧妙,看久了就觉得很有意思呢。
厨房
厨房的整体设计给人感觉特别耐看,满满的储物柜设计,方便一些日常烹饪物品的存放。
卧室
粉色的饰面板真的赋予了空间几分青春活力,白色的鲜花纯洁至极,是一份不敢随意惊扰的美好。
卫生间
卫生间是清爽的配色,给人一种空间比实际宽敞的错觉,金色的花洒吸睛极了,不过分强调,却给到人精致高级的感觉。
发布于2022年07月13日
@声明:上述内容由装企自行上传
来源:轩怡装饰
<<上一篇
100㎡三室,空间的另一种可能
下一篇>>
怎样的方案才能使你眼前一亮




