45平老房变时尚单身宅,拱形门洞多色彩
户型:一居
风格:其他
面积:45㎡
装修方式:全包
装修工期:90天
位置:融创融园
造价:5万元
方案说明
本案是一户老小区的二次改造,砖混结构,80年代的户型无法满足现在年轻人的需求,根据单身业主的生活习惯与喜好,打造高颜值居家空间 老房变时尚单身宅,水磨石玻璃砖,拱形门洞多色彩
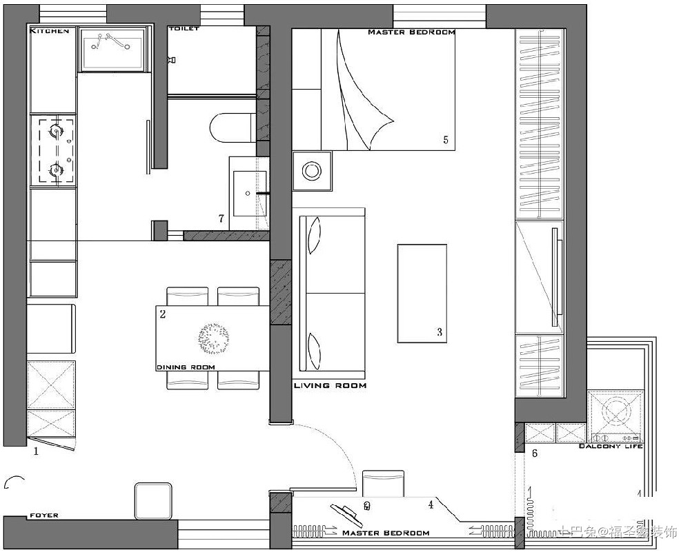
户型图
玄关
入户一组通顶的多功能柜体满足入户鞋柜与餐厨储物的功能,Tiffany 色的柜体柜门搭配金色拉手,给人清新精致的视觉体验
玄关以餐厅与共享阅读区为端景,水磨石瓷砖地面搭配褐红拼色墙,加入黑色带来的深邃与个性格调
客厅
客厅与卧室公用同一空间,以不同颜色做定制柜,让空间丰富
木色地板搭配以蓝白为色块的背景墙,顶面的简欧围边混搭出空间的小精致,姜黄色的沙发与灰紫色的床品在同一空间中和谐共存
电视背景简单却充满艺术格调
餐厅
餐厅,餐桌靠墙放置,留出餐厨合理的空间动线,简单自然的餐桌椅搭配两盏营造氛围的吊灯,打造复古小轻奢的情调
水晶灯的华丽结合具有仪式感的餐具,将原来的厨房墙面移至餐厅背景,通过一列玻璃砖墙作为背景修饰,同时为采光较弱的餐厅带来通透性
餐厅望向厨房,就餐区与厨房相邻让生活动线更加连贯
厨房
厨房,水磨石地砖搭配脏粉色的橱柜门,取消上柜辅以工字铺贴墙砖,不影响餐厨空间的采光
卧室
床尾的通高大衣柜满足客与卧的储物需求
卫生间
卫生间,灰色地砖搭配人字拼绿色墙砖,长虹玻璃,金色五金件让小空间拥有高颜值
阳台
利用窗沿下的过道规划成书房,兼具阅读、学习、梳妆的功能,拱门是生活阳台的入口
从生活阳台看书房
发布于2020年05月20日
@声明:上述内容由装企自行上传
来源:福圣鑫装饰
<<上一篇
注入别样艺术气息的120平休闲美式
下一篇>>
时尚风格与舒适享受之间的平衡














