简约又奢华的现代风,新一代的首选
户型:四居及以上
风格:现代简约
面积:130㎡
装修方式:半包
装修工期:95天
位置:天津湾中环广场
造价:15万元
方案说明
业主希望有足够的收纳空间,不需太复杂的造型,简单温馨即可。将设计思路的核心放在把房子赋予家的最初始定义--平静喜悦,温馨舒适,回归本心,岁月静好
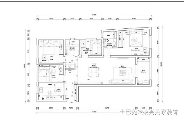
户型图
房型只做了小小的优化空间改动
玄关
纯白色的墙顶面和大理石纹地砖让空间严谨有序,搭配抽象壁画使色彩在空间延伸碰撞
客厅
没有做电视背景墙,简单的留白让空间更加舒适
高纯色彩,简单吊顶柔软自然的配饰,让人想窝进沙发里
餐厅
不用过多点缀,品质简约的现代艺术感油然而生,雅致又显格调
封闭式厨房
U型厨房的设计扩大了厨房的操作空间
卧室
粉色床头搭配暖色灯光,给卧室蒙上了一层静谧温馨的格调
梳妆台是女主人精心打扮自己的地方,避免了窗口的光源直射,收纳整洁舒适
卫生间
童趣的蓝色调让孩子更加享受洗漱时光
内卫更具私密性功能更加全面
全封闭阳台
阳台设置洗衣区,结合收纳与功能性,吊柜底部设计开放格增加储物空间
儿童房
清新又温柔的粉色迎合了女儿对新房间的期待
书桌放在床尾处,无论是学习还是休息都有自己的独立空间
男孩子的房间整面落地窗,视野更加开阔,蓝色调的房间是男孩子的心头好
发布于2022年10月25日
@声明:上述内容由装企自行上传
来源:荣兴美家装饰
下一篇>>
5万打造一个44平方米的年轻人的空间

















