5万打造一个44平方米的年轻人的空间
户型:一居
风格:现代简约
面积:44㎡
装修方式:全包
装修工期:60天
位置:杏花东里
造价:5万元
方案说明
此方案极简主义是这个家的关键词,明亮而开放的空间使得视觉效果比实际上大很多。在这个小家,年轻的主人也需要自己的私人空间,我们利用衣柜中间框架作为客厅与卧室的分隔。
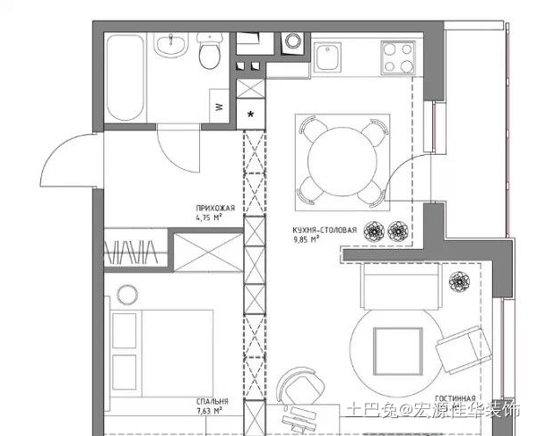
户型图
平面布局图
客厅
餐厅
卧室
其他
发布于2019年07月30日
@声明:上述内容由装企自行上传
来源:宏源佳华装饰
<<上一篇
简约又奢华的现代风,新一代的首选
下一篇>>
小阳台改厨房,132㎡吃货之家
















