小阳台改厨房,132㎡吃货之家
户型:三居
风格:现代简约
面积:132㎡
装修方式:全包
装修工期:45天
位置:兴虹苑
造价:21万元
方案说明
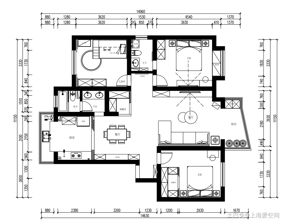
原始户型厨房靠近小阳台,中间有小隔墙。客餐厅区域有一个小空间的收纳间。将厨房整体空间扩大,将小阳台包括到厨房内,扩大整体的使用空间。以及客餐厅内的小储藏间改造了一下,扩大了储藏间的使用空间。
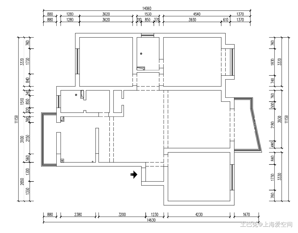
户型图
客厅
客厅内,业主原有的家具是偏中式的家具,我们整体还是给他做了整体新中式的搭配。
餐厅
餐厅旁边坐了整体的餐边柜。桌子也使用的之前的新中式的桌子。
厨房
厨房的空间将小阳台也纳入之后,整体的空间很大,放了两个冰箱,一个冷冻柜以及一个双开门冰箱。
卧室
次卧里面做了一个小一点的衣帽间,增加了储物的功能。
卫生间
两个卫生间,其中一个只满足洗漱的放在主卧使用,另一个做了干湿分离做客卫使用。
儿童房
儿童房整体选用了粉紫色进行装饰,里面放的是上下的母子床。
发布于2020年12月11日
@声明:上述内容由装企自行上传
来源:上海爱空间
<<上一篇
5万打造一个44平方米的年轻人的空间
下一篇>>
龙湖时代小区马先生的家















