120平现代简约-三代人居住空间
户型:三居
风格:现代简约
面积:120㎡
装修方式:半包
装修工期:90天
位置:德华一村
造价:15万元
方案说明
本案是三代人居住,因为人口较多,新置换的三房,希望这整体储物空间多一些,对环保要求比较高,所以,给业主推荐了我们公司的无毒家装,对环保方便提供了更高的保障
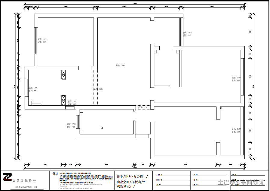
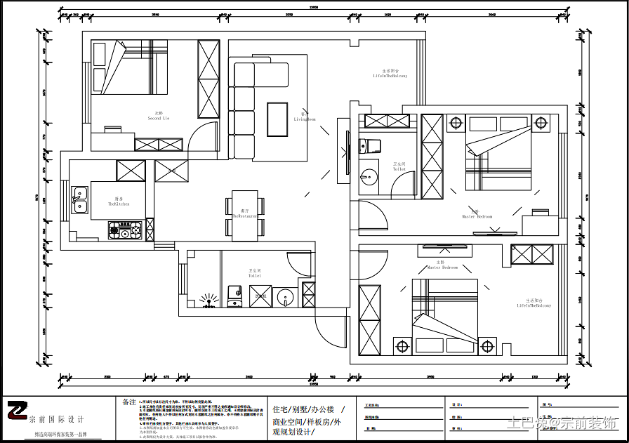
户型图
客厅
餐厅
封闭式厨房
卧室
卫生间
儿童房
其他
发布于2020年09月11日
@声明:上述内容由装企自行上传
来源:宗前装饰
<<上一篇
诺德名都
下一篇>>
国耀上河城现代简约 | 东宝设计




















