国耀上河城现代简约 | 东宝设计
户型:三居
风格:现代简约
面积:140㎡
装修方式:全包
装修工期:90天
位置:国耀·上河城
造价:15万元
方案说明
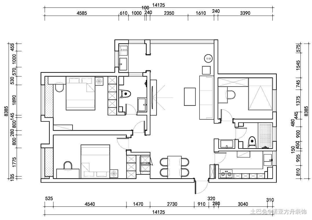
此户型是一个大三室,业主的职业是自营个体业主。平时工作比较忙,也没有太多的时间去照顾装修的事情。所以全部委托给公司来负责,和公司这边的合作方式是大包。主材和家具部分全部由公司这边负责,客户比较省心。设计方案这部分,主要问题是厨房操作台面太少,我们将冰箱部分移出厨房,增大厨房台面和柜体部分的收纳。客厅部分有外置阳台,这次装修也把外置的阳台封起来,作为室内部分,增大客厅面积。之前客户装修过好几套房子,也找过土巴兔上的其他公司。发现各家施工工艺水平参差不齐,这套房子自己打算长期居住,所以多方考虑之后,将装修交给我们来负责。
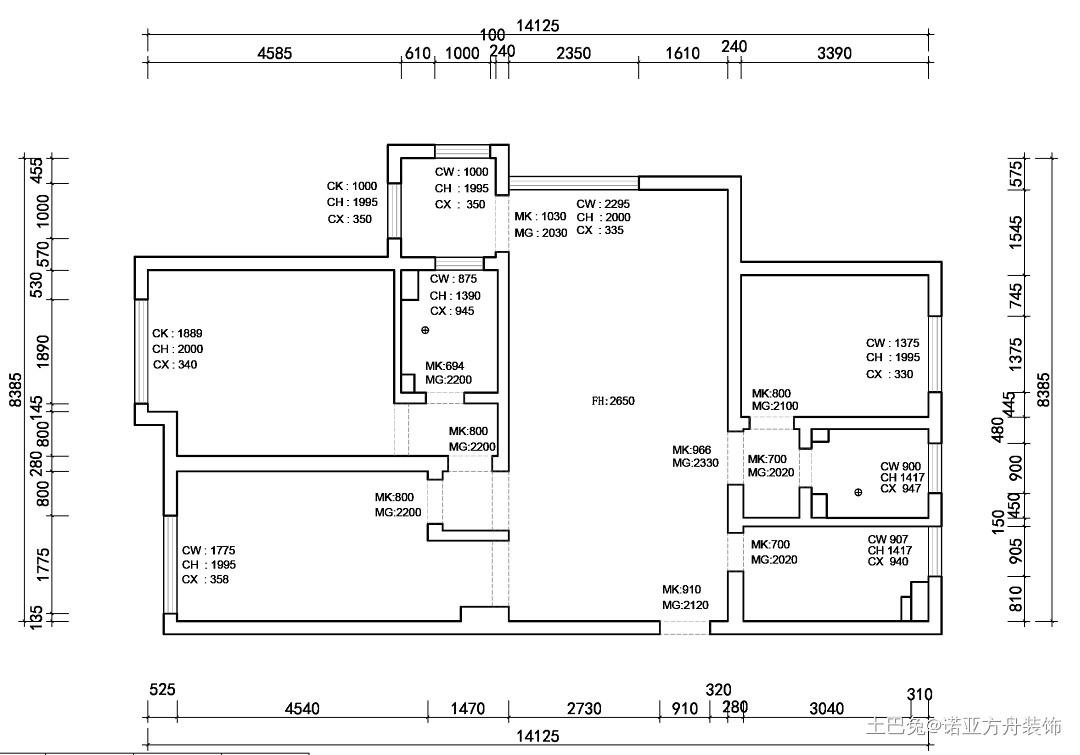
户型图
玄关
客厅
餐厅
厨房
卧室
卫生间
阳台
儿童房
发布于2021年06月27日
@声明:上述内容由装企自行上传
来源:诺亚方舟装饰
<<上一篇
120平现代简约-三代人居住空间
下一篇>>
140㎡天然石材,木色与灰色沉静安宁

















