城建琨廷任先生家
户型:二居
风格:现代简约
面积:85㎡
装修方式:半包
位置:北京城建琨廷
造价:2万元
方案说明
当客户看到自己家精美的效果图的时候,内心的想法必然是我要选择你来做我的设计。设计源于生活,重于细节,美在思路
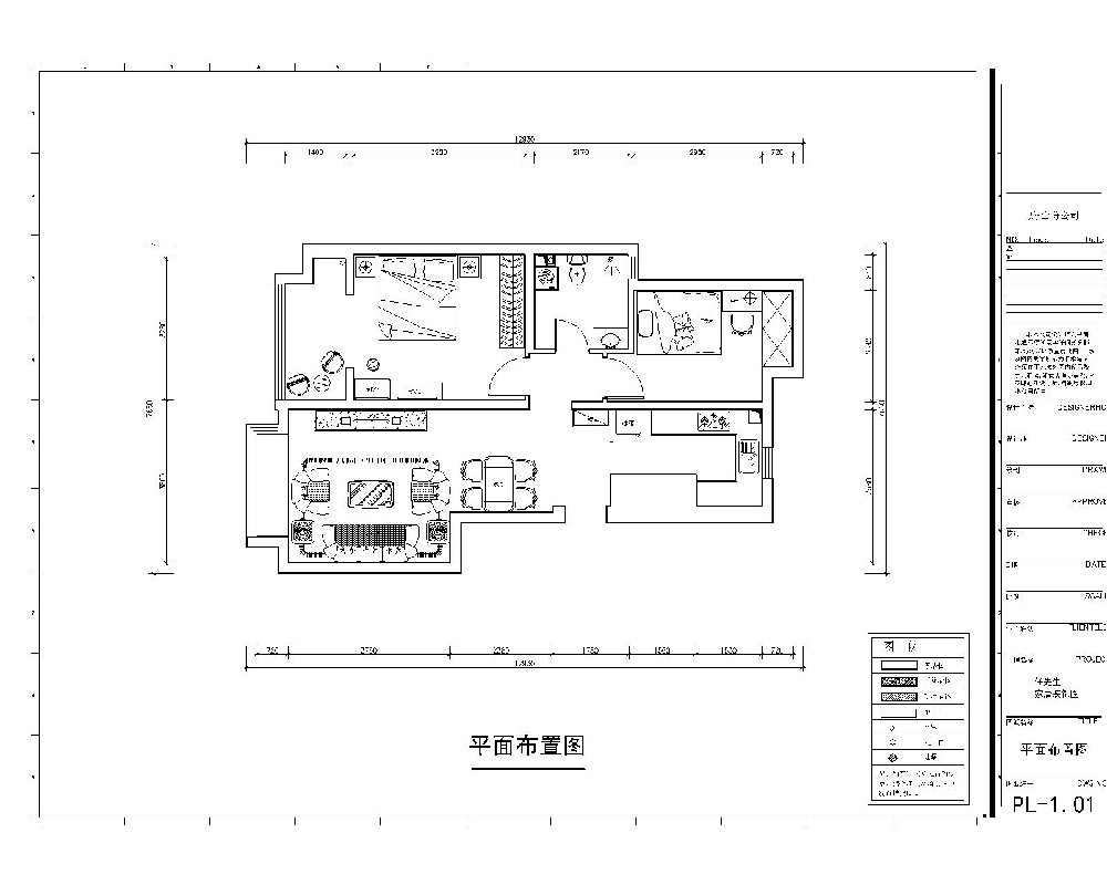
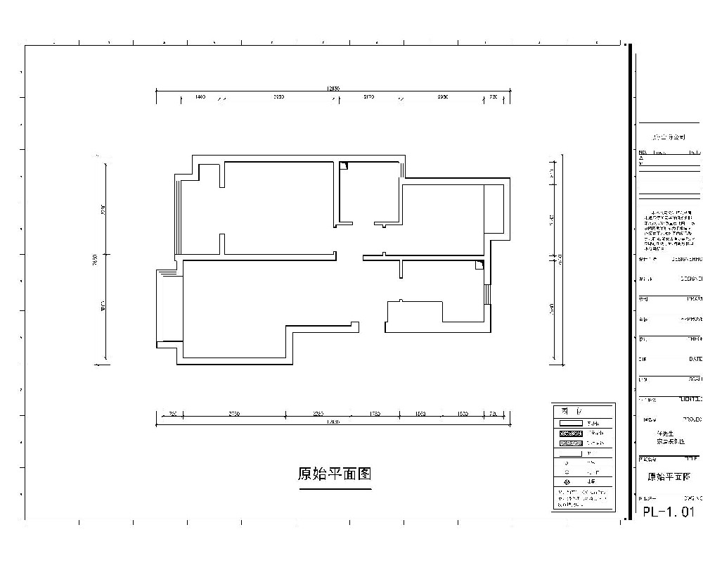
户型图
此图为房子原始结构图,误差在两公分之内
此图是设计师为本次设计做了一个CAD草图
客厅
客厅以黄色与蓝色为点缀,小清新的挂画结合壁纸勾勒出淡淡的小清新效果。
暖色的灯带使整体效果更完美,现代风的吊灯使空间尽显品质。
当你不知道背景墙怎么装饰的时候,也许照片墙正适合你。
卧室
蓝色的壁纸带给主人舒适放松的心情。
发布于2016年09月19日
@声明:上述内容由装企自行上传
来源:元熙龙昊
<<上一篇
282平米现代风格|阳光
下一篇>>
上地北里-160平米-现代风格









