上地北里-160平米-现代风格
户型:三居
风格:现代简约
面积:160㎡
装修方式:全包
装修工期:45天
位置:上地
造价:28万元
方案说明
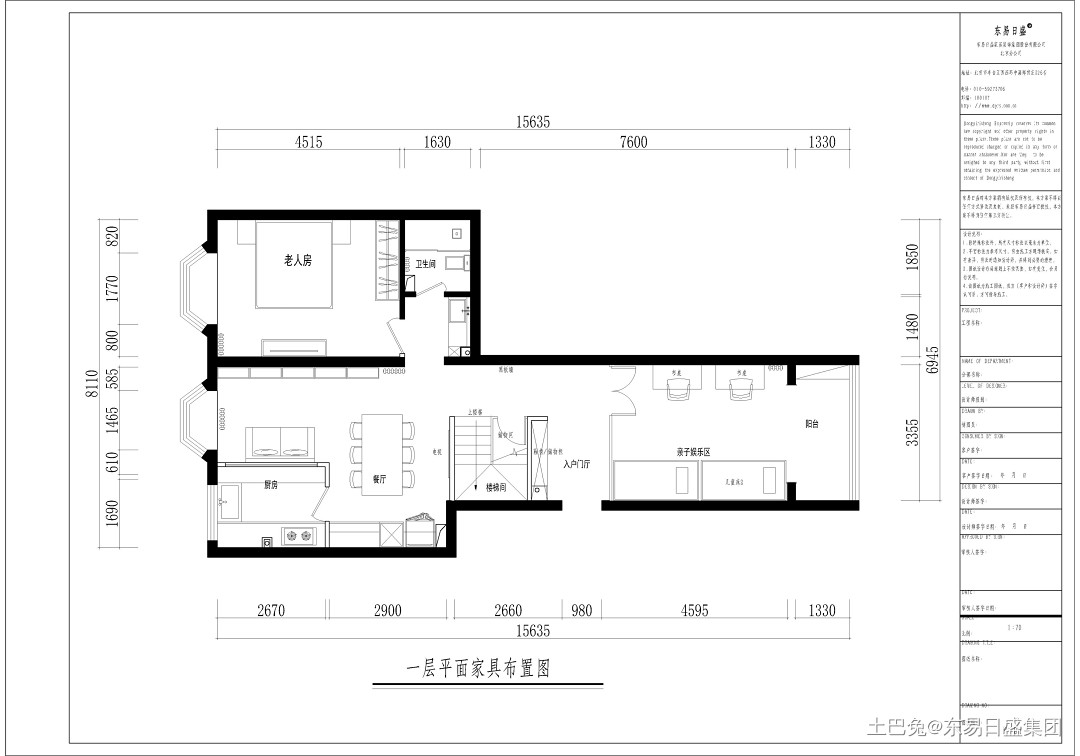
案例说明:本案客户为一家四口人,年轻夫妇和双胞胎儿子,本案风格定义为简约风格,原始户型为三居室,一层主卧室主要为年轻夫妇居住,另外两个卧室为预留老人房和儿童房,
户型图
整体多设计白色温馨定制家具,卫生间干湿分离,保证多人使用方便,厨房中西厨设计,一层预留儿童娱乐区域,未来孩子长大也预留了卧室区域。
客厅
客厅装修效果图案客户为一家四口人,年轻夫妇和双胞胎儿子,本案风格定义为简约风格。
餐厅
餐桌的环境设计重要的就是就餐环境的营造,实际风格要与整个居室风格一致协调。
封闭式厨房
厨房装修效果图设计源于生活,细节决定品质。厨房中西厨设计,一层预留儿童娱乐区域,未来孩子长大也预留了卧室区域
卧室
卧室装修效果图原始户型为三居室,一层主卧室主要为年轻夫妇居住,另外两个卧室为预留老人房和儿童房,整体多设计白色温馨定制家具。
卫生间
卫生间装修效果图卫生间干湿分离,保证多人使用方便,打造一个干净的卫生间环境。
儿童房
一层预留儿童娱乐区域,未来孩子长大也预留了卧室区域
发布于2022年09月21日
@声明:上述内容由装企自行上传
来源:东易日盛集团
<<上一篇
城建琨廷任先生家
下一篇>>
舒适慵懒,玩转年轻人的家居生活













