精装房改造,打造一个现代极简的家
户型:三居
风格:现代简约
面积:150㎡
装修方式:全包
装修工期:85天
位置:高·尚领域
造价:30万元
方案说明
该案房屋为三室精装房交付。首次见到业主夫妻,温文尔雅,我们沟通很是愉快。在沟通中,了解夫妻二人对于想改造精装房主要是觉得精装房不够好,不能满足一些生活需求:1、房屋主要一家三口使用,家里老父母偶尔入住;2、业主一家很爱看书,家里需要很多放置书的位置,以及充足的阅读区;3、除了正常的主卧、儿童房,还需要书房、备用卧室、练琴房;4、厨房太小,不够摆放电器。在设计中,我们针对业主需求进行层层推演,解决了需求,同时,设计感区别原有精装房,给业主的家打上了他们自己的烙印
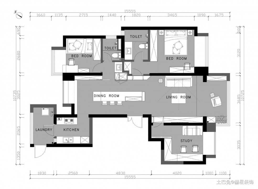
户型图
原户型入户位置较堵。整个家不通透,被衣帽间把客厅餐厅分隔,动线比较弯绕;厨房太小,两个卫生间不做改动;客厅景观阳台很大,餐厅部也有窗户,但由于开发商建筑密集度较大,导致天光入户一般,再加衣帽间在中间,整个房屋主要动线区域采光较弱。改造后更为合理。
客厅
原先入户可见的鞋柜,直接拆除,取消了衣帽间,餐厅、客厅连通一体,也提高了户型采光的通透性;根据整体设计效果,入户门做了改色处理。
电视墙上做了大量收纳柜,顶上放置了投影幕布,电视和投影可以同时拥有。
沙发,也是阅读的好地方。灯光一改传统的落地灯,选择在墙上,竖向安装轨磁吸道射灯,喜欢怎么照射,随意调整。
阳台采用最近很流行的梦幻纱帘,极具质感。
这张图是落日的抓拍,阳光太恰巧,窗户百叶穿过窗边的植物,投到了沙发后,形成了光影的一幅挂画
这是餐桌另一侧柜子的开放格,临时放置物品的地方,也通透了视野
餐厅
岛台餐厅比较多功能,作为餐厅和办公区都可以。
餐厅电器放置柜:柜子在厨房门口,用了原本的飘窗,改造成了橱柜,用来放置厨房内放不下的电器,也是一个大大的餐边柜
餐厅餐桌比较长,足够五六个人使用。
餐桌一侧利用飘窗位置做餐边储物。可以放置很多小家电。
另一侧是开放格,一边深色高柜储物柜
餐边柜的储物真的很大,可以放置各种小家电,柜体材质很细腻高级。
厨房
厨房一排到顶电器柜,灰色墙砖搭配米色橱柜柜体。
卧室
主卧室较大,原来有衣帽间,通过户型优劣分析,和业主沟通后衣帽间较为多余,在设计中直接拆除,取消了衣帽间。做了一整排大衣柜,储物足以。
床尾的柜子,兼容了梳妆台
床头柜与衣柜全部定制,做一体式。
因为衣柜是深柜(深度60CM),梳妆台上部吊柜,为了防止碰头,如,做了两个厚度
阳台
阳台扩大了空间延伸到客厅,这是家里阳光最好的区域。
可以放置休闲沙发、大桌子等,用作休闲、阅读、亲子活动区皆可。
阳台空间灵活多变,方便业主后期实际使用。
阳台足够大,阳台两边做了高柜,还剩余很多空余空间。阳台一角做了端景。
儿童房
儿童房门口就是客卫,可以通过餐厅移门关上,形成一个带卫生间的套间;房间较小,做了全屋定制柜。
儿童房床下收纳柜,床头是衣柜叠放区和挂放区,同时也有床头柜的置物空间;床尾对着是书柜、书桌
书房
书房一个长条书桌,可以供2人同时使用~后部预留了沙发床和电钢琴位置,提供练琴、做临时卧室使用。
发布于2023年04月23日
@声明:上述内容由装企自行上传
来源:赫星装饰




























