朝廷公寓83平现代轻奢风格
户型:二居
风格:现代简约
面积:83㎡
装修方式:全包
装修工期:45天
位置:朝阳公寓
造价:11万元
方案说明
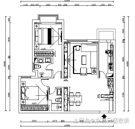
业主要求客厅通过原来的卧室隔断拆除做成现在一个大客厅,让空间变得通透,把客厅与餐厅空间做成一个整体,加大了各个空间的交流互动,营造了很好的家庭氛围。
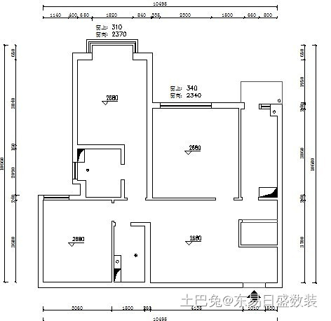
户型图
客厅
电视背景墙采用白色大理石与金属条镶嵌让整个空间更有层次感,整体空间棕色为主,绿植点缀彰显整个空间的活跃性,体现了轻奢干净而不张扬的居家空间。
厨房
卧室
主卧与客厅色彩相对应棕色与木地板的质感打造一种静谧的氛围,床头背景墙低调奢华,吊灯文艺感十足,显着整个空间庄重而又不乏轻松浪漫的感觉,设计线条简约流利特别令人印象深刻。
家中的声色不在于多,在于搭配,过多的颜色会给人一种杂乱无章的感觉,在现代轻奢风格中多使用一些纯净的色调,这样会给人耳目一新的惊喜。
卫生间
采用的是时尚又实用的水磨石,与金色搭配的恰到好处,让人觉得卫生间也是满满的优雅感受。
发布于2020年04月10日
@声明:上述内容由装企自行上传
来源:东易日盛数装
<<上一篇
精装房改造,打造一个现代极简的家
下一篇>>
125㎡自然质朴的栖息之所。















