遇见新中式之桃花源178平独栋
户型:别墅豪宅
风格:中式现代
面积:178㎡
装修方式:全包
装修工期:180天
位置:融创玖溪桃花源
造价:40万元
方案说明
设计理念:对今天的我们来说,尽管地理上的“远方”变得前所未有的容易抵达,但由身而心的度假体验却求而不得。人久在城市的樊笼里,自然的顺势本性,偶尔无所扭曲的生活,是本案业主留给设计师的首要问题。项目位于主城区40公里左右,紧邻有“小九寨沟”之美誉的石塘竹海景区,竹海,远山,村落,田野,一切都充满了随机性、想象力和无拘束的态度。在这样的环境中,建筑师认为对待本项目也应该放松一点。
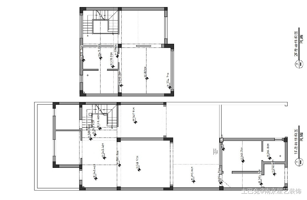
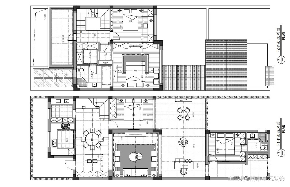
户型图
原始结构图
平面布置图
客厅
房屋的整体结构和传统有所不同,延续的园林院落的厢房设计,进户的廊道经过厢房后是家里的中心庭院,这也保证了一家4代人的各自活动和私密的空间。
初次沟通风格时,叔叔说,我要年轻一点的中式,既要搭配外立面的整体风格,也不想像传统中式那么守旧。所以我们整体色调以灰色中性色调为主,在木质造型上嵌入了香槟金的不锈钢修边。
前院的厢房,奶奶不用爬楼有自己独立的卫生间,是距离门口和院子最方便的屋子。一楼的厢房是叔叔阿姨的卧室,考虑的生活的方便,所以把楼上的套间留给了女儿和小孙女。
客厅的沙发背景简单的墙布,依然可以出好的效果呢。
家具的也选用新中式的风格,全屋的三恒系统,提高整体居住的舒适度的。中式栅格的高窗,在这个初春,将第一抹阳光略加修饰后迎进这个热闹温暖的家。
餐厅
餐厅区域,就在沙发的旁边,嵌入式的冰箱节省了空间。
圆桌温馨,满足一家的生活所需。一侧的餐边柜增加了厨房的收纳空间。家具都是质感十足。
餐厅地面的砖是灰色系列的,时下非常流行。
餐厅
餐厅
封闭式厨房
厨房是封闭式的,木纹色更加的自然,更加的温馨。
儿童房
充满童趣的儿童房
充满童趣的儿童房
书房
功能区
其他
主卧室光线非常的好,窗户也是新中的风格,满墙的墙布温馨感十足。
采光非常好
温馨的地板
楼梯
发布于2021年03月27日
@声明:上述内容由装企自行上传
来源:南京星艺装饰
























